Приказ Министерства градостроительной деятельности и развития агломераций Нижегородской области от 29.07.2024 № 07-02-03/65
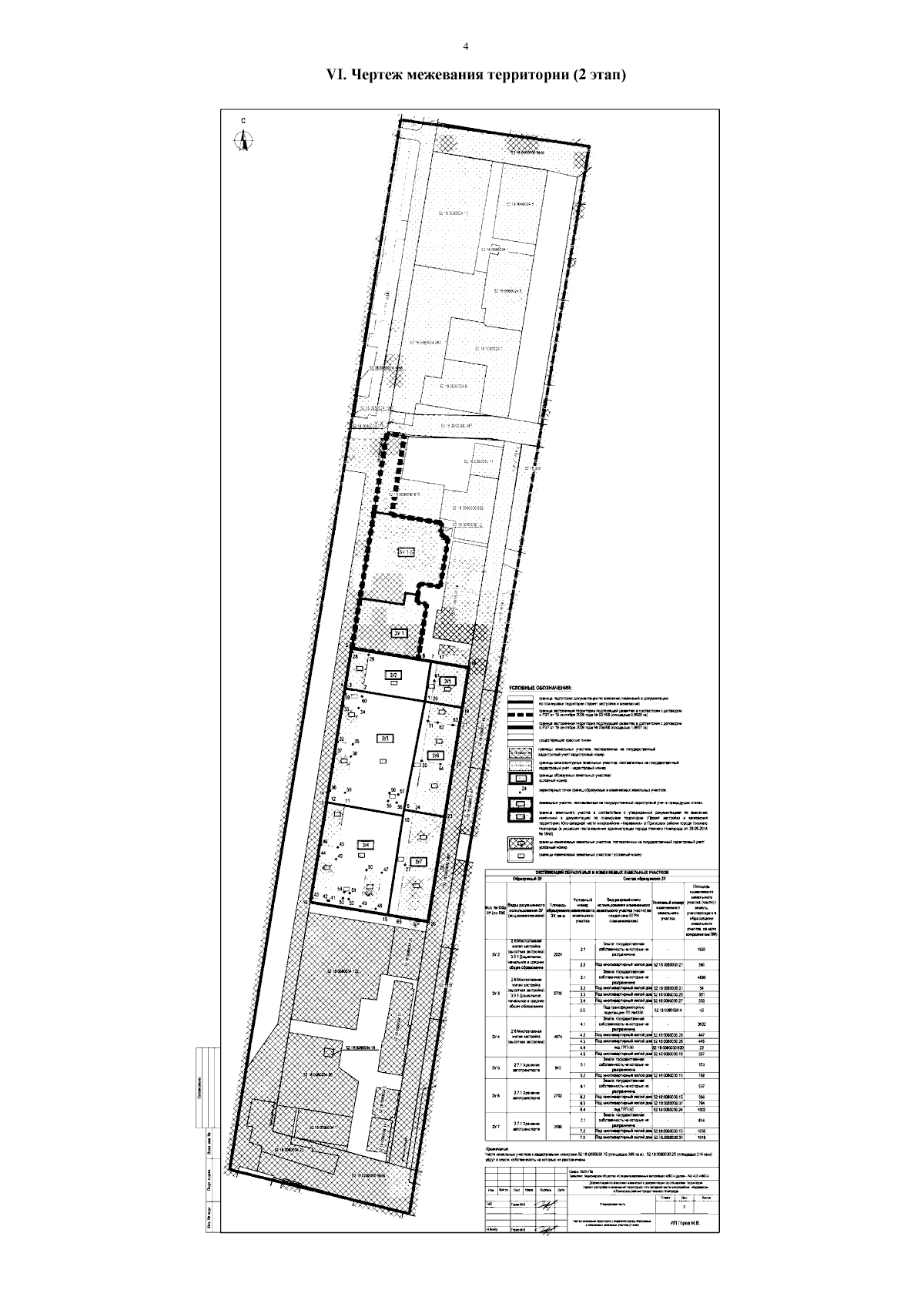
"О внесении изменений в документацию по внесению изменений в документацию по планировке территории (проект застройки и межевания территории) юго-западной части микрорайона "Караваиха" в Приокском районе города Нижнего Новгорода, утвержденную приказом министерства градостроительной деятельности и развития агломераций Нижегородской области от 28 мая 2024 г. № 07-02-03/44"
(Зарегистрирован 19.08.2024 № 26172-330-007-02-03/65)
"О внесении изменений в документацию по внесению изменений в документацию по планировке территории (проект застройки и межевания территории) юго-западной части микрорайона "Караваиха" в Приокском районе города Нижнего Новгорода, утвержденную приказом министерства градостроительной деятельности и развития агломераций Нижегородской области от 28 мая 2024 г. № 07-02-03/44"
(Зарегистрирован 19.08.2024 № 26172-330-007-02-03/65)
Номер опубликования: 5201202408220018
Дата опубликования:
22.08.2024
