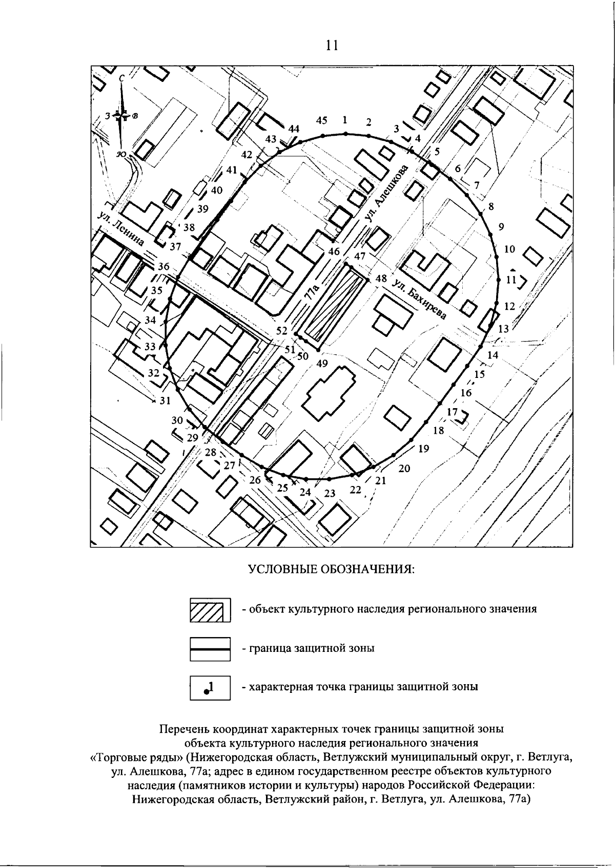
Приказ Управления государственной охраны объектов культурного наследия Нижегородской области от 12.07.2024 № 176
"О внесении изменений в приказ управления государственной охраны объектов культурного наследия Нижегородской области от 10.11.2020 № 354"
(Зарегистрирован 31.07.2024 № 26059-518-176)
"О внесении изменений в приказ управления государственной охраны объектов культурного наследия Нижегородской области от 10.11.2020 № 354"
(Зарегистрирован 31.07.2024 № 26059-518-176)
Номер опубликования: 5201202408020001
Дата опубликования:
02.08.2024
