Приказ Министерства градостроительной деятельности и развития агломераций Нижегородской области от 11.04.2024 № 07-02-03/33
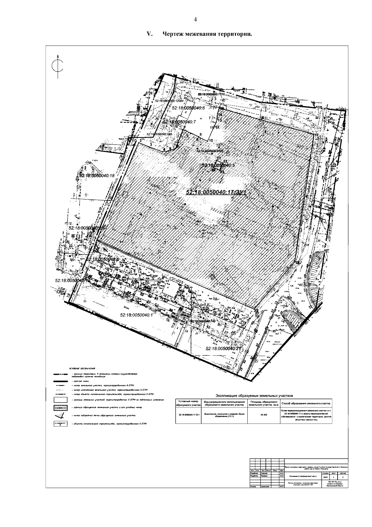
"Об утверждении проекта межевания территории в границах улицы Голубева, бульвара Заречный в Ленинском районе города Нижнего Новгорода"
(Зарегистрирован 06.05.2024 № 25510-330-007-02-03/33)
"Об утверждении проекта межевания территории в границах улицы Голубева, бульвара Заречный в Ленинском районе города Нижнего Новгорода"
(Зарегистрирован 06.05.2024 № 25510-330-007-02-03/33)
Номер опубликования: 5201202405080005
Дата опубликования:
08.05.2024
