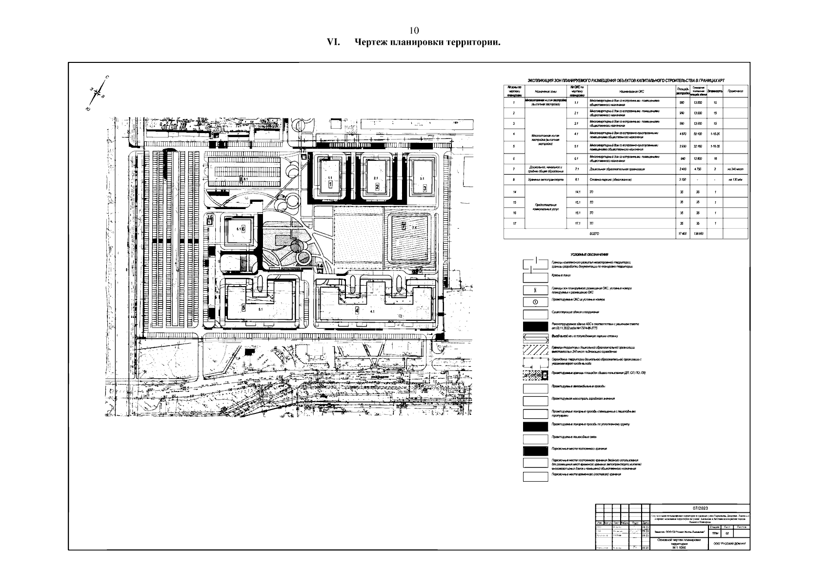
Приказ Министерства градостроительной деятельности и развития агломераций Нижегородской области от 10.04.2024 № 07-02-03/34
"Об утверждении документации по планировке территории, подготовленной в рамках исполнения договора о комплексном развитии незастроенной территории, по улице Львовская в Автозаводском районе города Нижнего Новгорода"
(Зарегистрирован 06.05.2024 № 25511-330-007-02-03/34)
"Об утверждении документации по планировке территории, подготовленной в рамках исполнения договора о комплексном развитии незастроенной территории, по улице Львовская в Автозаводском районе города Нижнего Новгорода"
(Зарегистрирован 06.05.2024 № 25511-330-007-02-03/34)
Номер опубликования: 5201202405080004
Дата опубликования:
08.05.2024
