Официальное опубликование правовых актов
ОФИЦИАЛЬНОЕ ОПУБЛИКОВАНИЕ
Приказ Министерства градостроительной деятельности и развития агломераций Нижегородской области от 15.03.2024 № 07-02-03/22
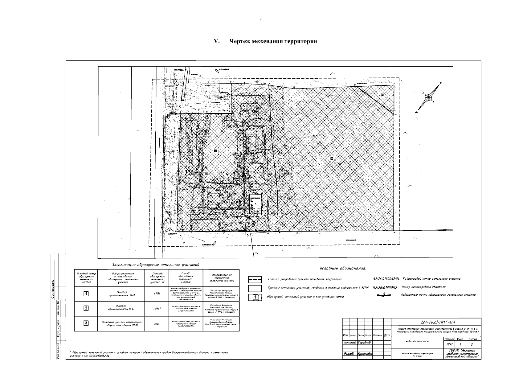
"Об утверждении проекта межевания территории, расположенной в районе д. №72 в с. Чернышиха Кстовского муниципального округа Нижегородской области"
(Зарегистрирован 01.04.2024 № 25325-330-007-02-03/22)
Номер опубликования: 5201202404030006
Дата опубликования: 03.04.2024
Страница №6 из 6:
Увеличить