Приказ Министерства градостроительной деятельности и развития агломераций Нижегородской области от 25.12.2023 № 07-02-03/129
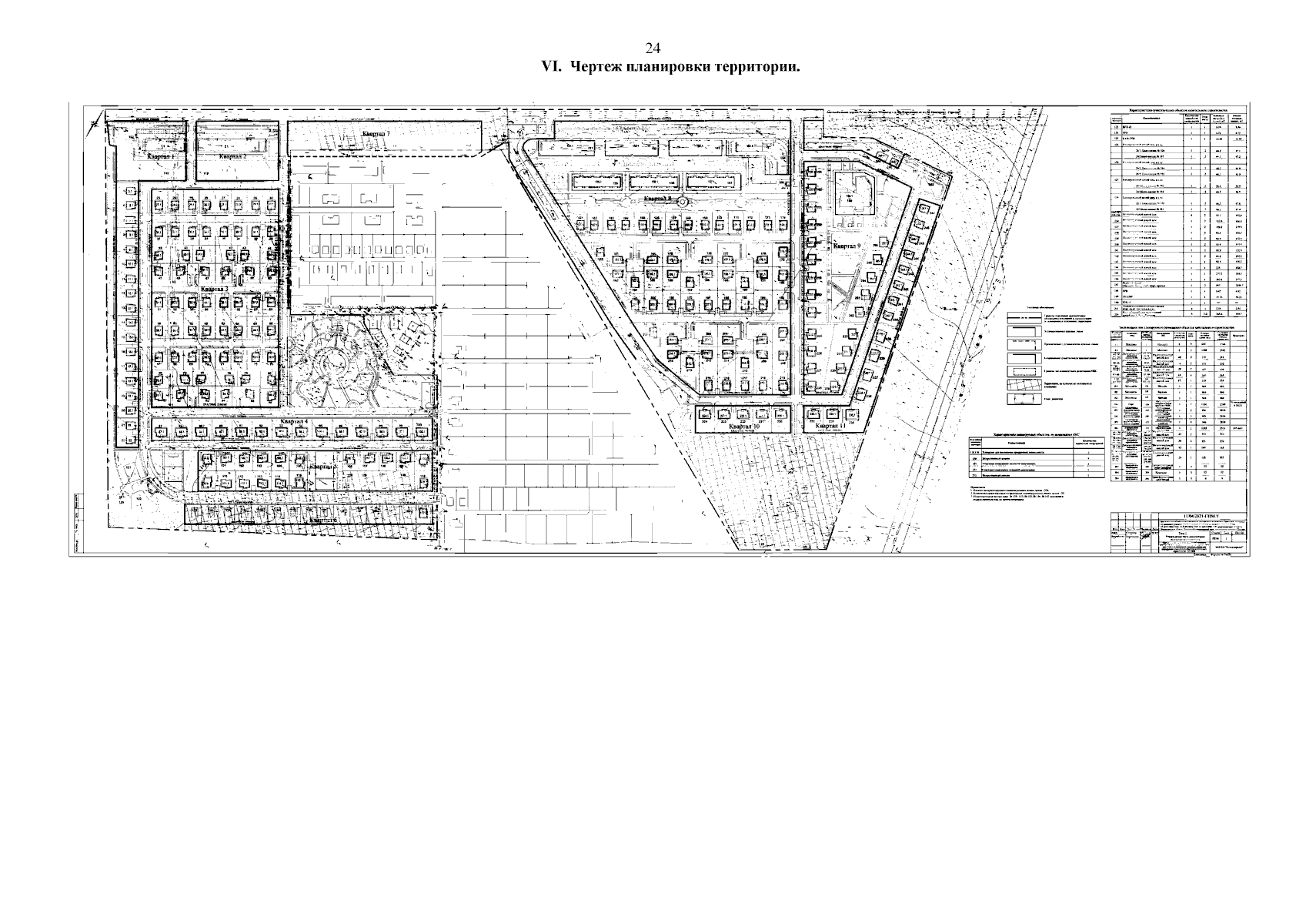
"Об утверждении документации по внесению изменений в документацию по планировке и межеванию территории, состоящей из земельных участков общей площадью 411815 кв.м с кадастровыми номерами 52:24:0110002:2326, 52:24:0110002:2319, 52:24:0110002:1189, расположенных по адресу: Нижегородская область, Богородский муниципальный округ, юго-восточная окраина с. Каменки"
(Зарегистрирован 31.01.2024 № 25019-330-007-02-03/129)
"Об утверждении документации по внесению изменений в документацию по планировке и межеванию территории, состоящей из земельных участков общей площадью 411815 кв.м с кадастровыми номерами 52:24:0110002:2326, 52:24:0110002:2319, 52:24:0110002:1189, расположенных по адресу: Нижегородская область, Богородский муниципальный округ, юго-восточная окраина с. Каменки"
(Зарегистрирован 31.01.2024 № 25019-330-007-02-03/129)
Номер опубликования: 5201202402020004
Дата опубликования:
02.02.2024
