Приказ Министерства градостроительной деятельности и развития агломераций Нижегородской области от 07.12.2023 № 07-02-03/118
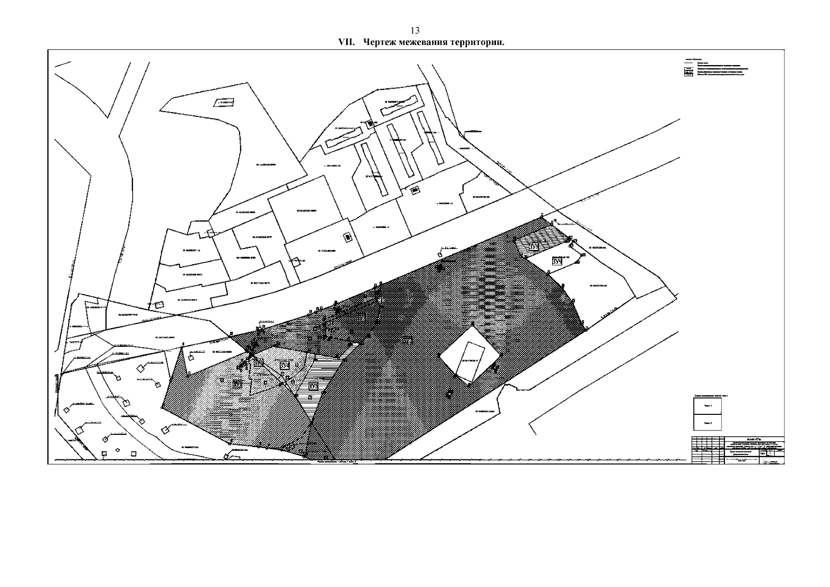
"Об утверждении документации по внесению изменений в документацию по планировке территории (проект планировки и межевания территории) земельных участков с кадастровыми номерами 52:18:0000000:5962, 52:18:0070277:114, расположенных по адресу: г. Нижний Новгород, Советский район, около деревни Новопокровское"
(Зарегистрирован 22.01.2024 № 24954-330-007-02-03/118)
"Об утверждении документации по внесению изменений в документацию по планировке территории (проект планировки и межевания территории) земельных участков с кадастровыми номерами 52:18:0000000:5962, 52:18:0070277:114, расположенных по адресу: г. Нижний Новгород, Советский район, около деревни Новопокровское"
(Зарегистрирован 22.01.2024 № 24954-330-007-02-03/118)
Номер опубликования: 5201202401250005
Дата опубликования:
25.01.2024
