Официальное опубликование правовых актов
ОФИЦИАЛЬНОЕ ОПУБЛИКОВАНИЕ
Приказ Министерства градостроительной деятельности и развития агломераций Нижегородской области от 06.12.2023 № 07-02-03/117
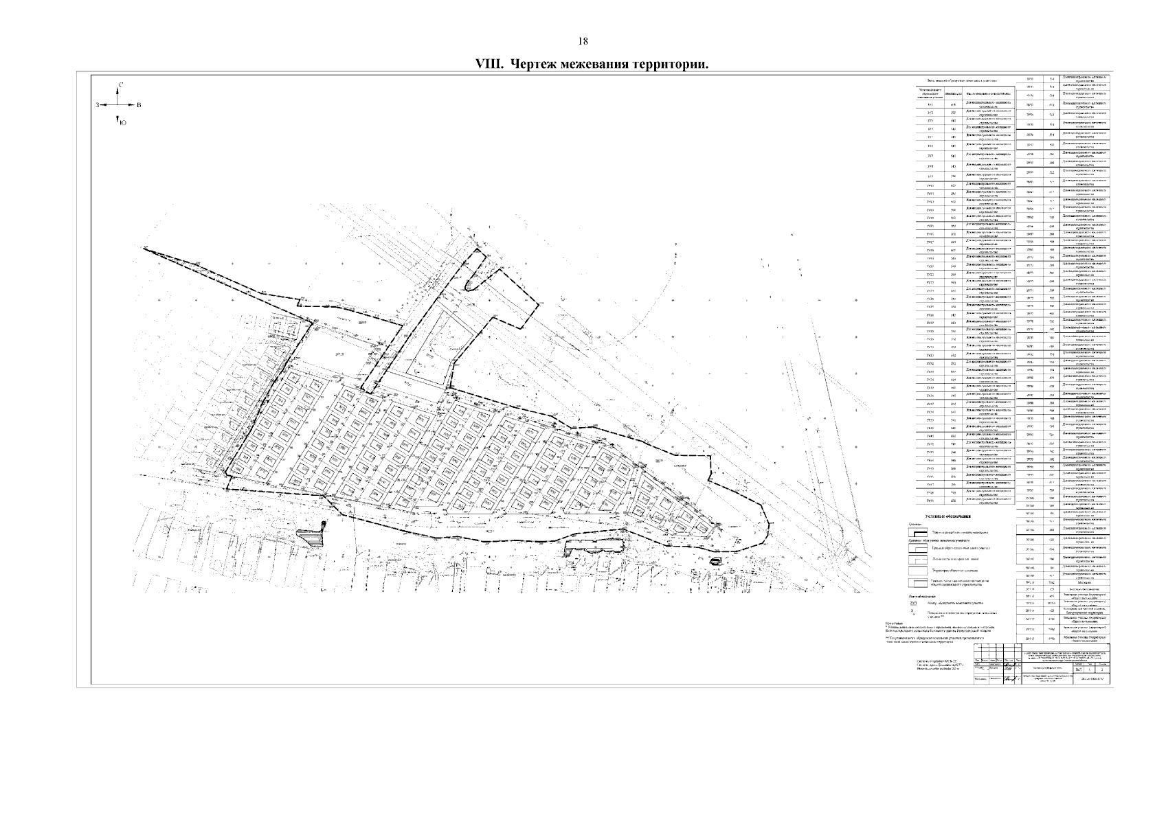
"Об утверждении проекта планировки территории, расположенной с северной стороны деревни Крутая и проекта межевания территории в границах земельных участков с кадастровыми номерами 52:26:0030034:26, 52:26:0030034:217, 52:26:0030034:40 в Кстовском муниципальном округе Нижегородской области"
(Зарегистрирован 10.01.2024 № 24884-330-007-02-03/117)
Номер опубликования: 5201202401120008
Дата опубликования: 12.01.2024
Страница №20 из 20:
Увеличить