Официальное опубликование правовых актов
ОФИЦИАЛЬНОЕ ОПУБЛИКОВАНИЕ
Приказ Министерства градостроительной деятельности и развития агломераций Нижегородской области от 04.09.2023 № 07-02-03/92
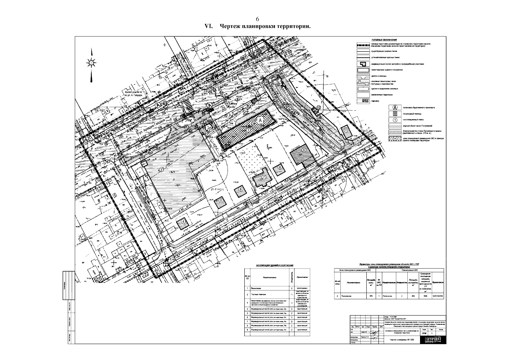
"Об утверждении документации по планировке территории (проекта планировки территории, включая проект межевания территории), расположенной в границах улиц Аркадия Гайдара, Стахановская, Лекальная в Автозаводском районе города Нижнего Новгорода"
(Зарегистрирован 20.09.2023 № 23695-330-007-02-03/92)
Номер опубликования: 5201202309220003
Дата опубликования: 22.09.2023
Страница №8 из 9:
Увеличить