Официальное опубликование правовых актов
ОФИЦИАЛЬНОЕ ОПУБЛИКОВАНИЕ
Приказ Министерства градостроительной деятельности и развития агломераций Нижегородской области от 23.08.2023 № 07-02-03/86
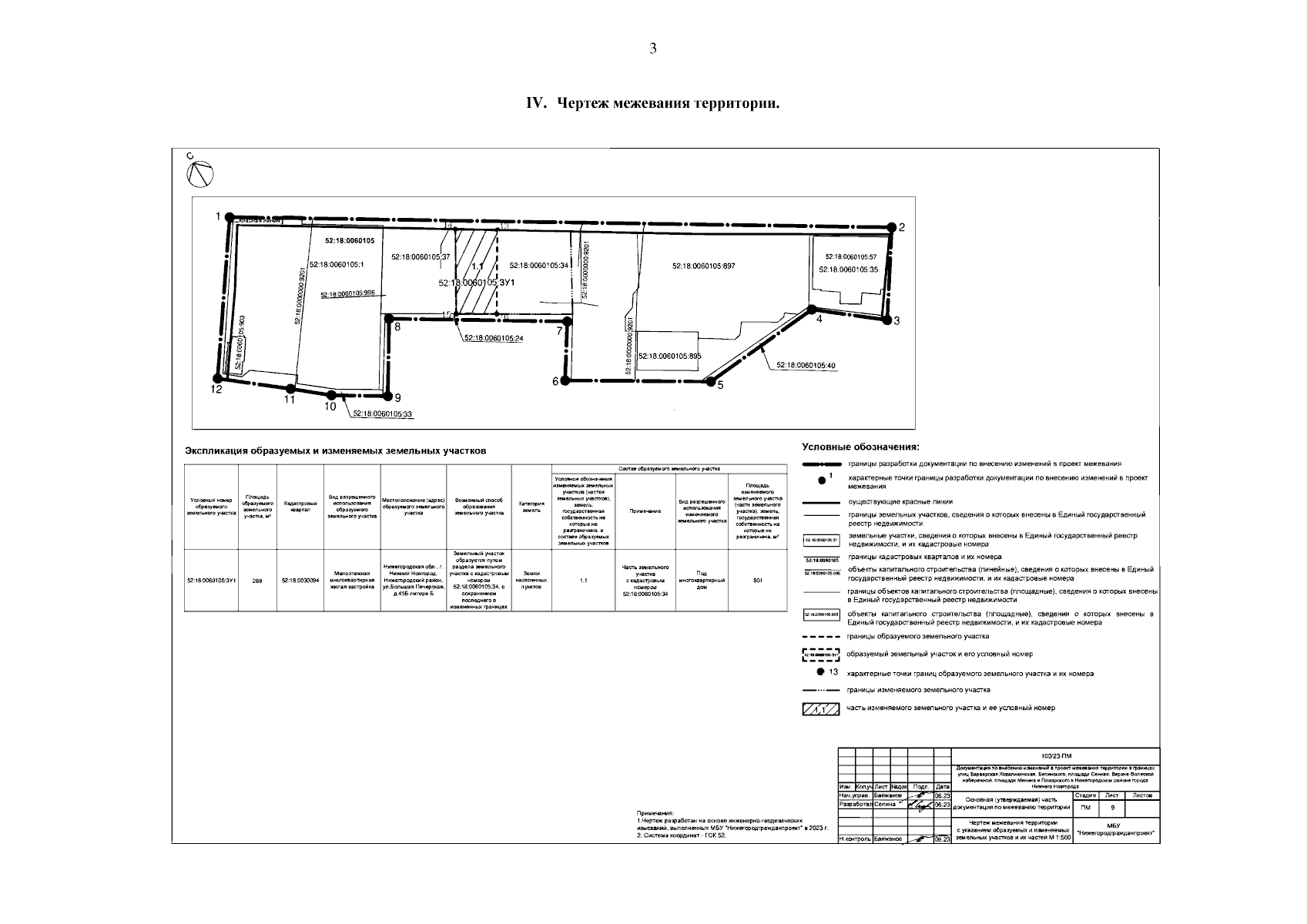
"Об утверждении документации по внесению изменений в проект межевания территории в границах улиц Варварская, Ковалихинская, Белинского, площади Сенная, Верхне-Волжской набережной, площади Минина и Пожарского в Нижегородском районе города Нижнего Новгорода"
(Зарегистрирован 13.09.2023 № 23676-330-007-02-03/86)
Номер опубликования: 5201202309150009
Дата опубликования: 15.09.2023
Страница №5 из 6:
Увеличить