Официальное опубликование правовых актов
ОФИЦИАЛЬНОЕ ОПУБЛИКОВАНИЕ
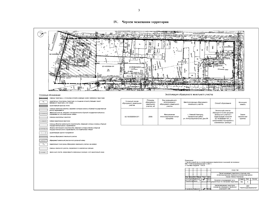
Приказ Министерства градостроительной деятельности и развития агломераций Нижегородской области от 27.06.2023 № 07-02-03/70
"Об утверждении проекта межевания территории в границах улиц Интернациональная, Приокская в Канавинском районе города Нижнего Новгорода"
(Зарегистрирован 24.07.2023 № 23420-330-007-02-03/70)
Номер опубликования: 5201202307270004
Дата опубликования: 27.07.2023
Страница №5 из 5:
Увеличить