Официальное опубликование правовых актов
ОФИЦИАЛЬНОЕ ОПУБЛИКОВАНИЕ
Приказ Министерства градостроительной деятельности и развития агломераций Нижегородской области от 06.06.2023 № 07-02-03/53
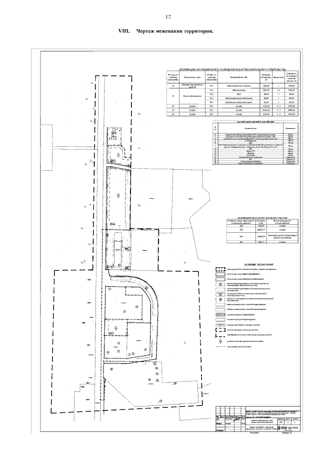
"Об утверждении проекта планировки и межевания территории, расположенной в районе 391-го километра по Московскому шоссе, с восточной стороны автомобильной дороги Красный Мыс - Гнилицкие дворики, в городском округе город Дзержинск Нижегородской области"
(Зарегистрирован 28.06.2023 № 23256-330-007-02-03/53)
Номер опубликования: 5201202307030003
Дата опубликования: 03.07.2023
Страница №14 из 14:
Увеличить