Приказ Министерства градостроительной деятельности и развития агломераций Нижегородской области от 29.03.2023 № 07-02-03/32
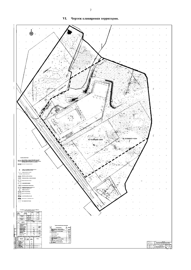
"Об утверждении документации по планировке территории (проект планировки территории, включая проект межевания территории) по улице Новополевая в Автозаводском районе города Нижнего Новгорода"
(Зарегистрирован 12.04.2023 № 22845-330-007-02-03/32)
"Об утверждении документации по планировке территории (проект планировки территории, включая проект межевания территории) по улице Новополевая в Автозаводском районе города Нижнего Новгорода"
(Зарегистрирован 12.04.2023 № 22845-330-007-02-03/32)
Номер опубликования: 5201202304140005
Дата опубликования:
14.04.2023
