Официальное опубликование правовых актов
ОФИЦИАЛЬНОЕ ОПУБЛИКОВАНИЕ
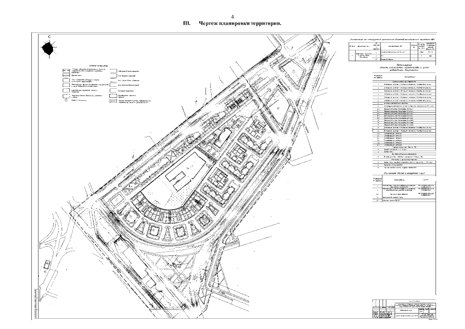
Приказ Министерства градостроительной деятельности и развития агломераций Нижегородской области от 15.02.2023 № 07-02-03/13 "Об утверждении документации по внесению изменений в проект планировки и межевания территории в границах улицы Украинская, Комсомольское шоссе в Канавинском районе города Нижнего Новгорода"
(Зарегистрирован 13.03.2023 № 22642-330-007-02-03/13)
Номер опубликования: 5201202303160009
Дата опубликования: 16.03.2023
Страница №6 из 6:
Увеличить