Официальное опубликование правовых актов
ОФИЦИАЛЬНОЕ ОПУБЛИКОВАНИЕ
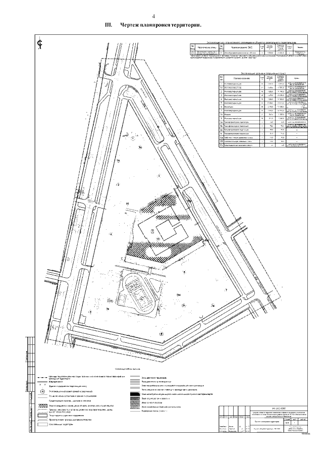
Приказ Министерства градостроительной деятельности и развития агломераций Нижегородской области от 31.01.2023 № 07-02-03/7
"Об утверждении документации по внесению изменений в проект планировки и межевания территории по улице Космическая в районе домов № 24, 32 в Автозаводском районе города Нижнего Новгорода"
(Зарегистрирован 27.02.2023 № 22575-330-007-02-03/7)
Номер опубликования: 5201202303010002
Дата опубликования: 01.03.2023
Страница №6 из 6:
Увеличить