Официальное опубликование правовых актов
ОФИЦИАЛЬНОЕ ОПУБЛИКОВАНИЕ
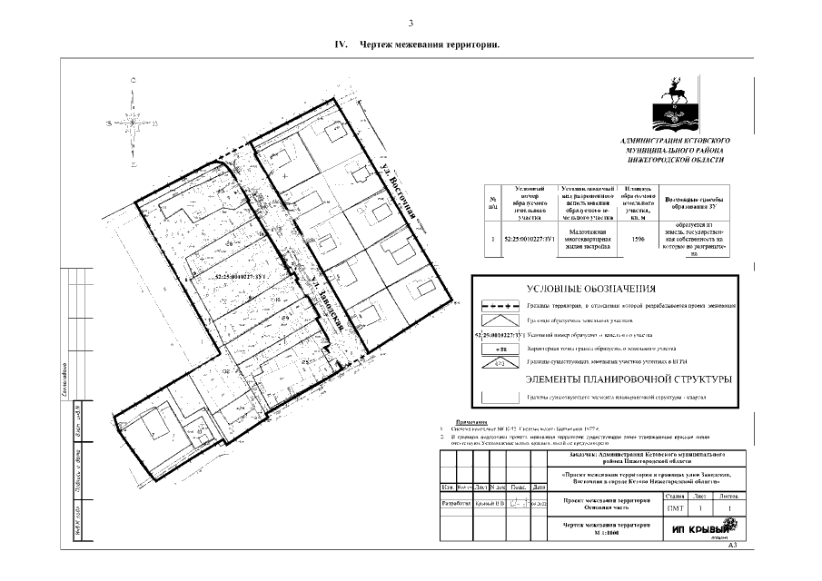
Приказ Министерства градостроительной деятельности и развития агломераций Нижегородской области от 27.12.2022 № 07-02-03/138
"Об утверждении проекта межевания территории в границах улиц Заводская, Восточная в городе Кстово Нижегородской области"
(Зарегистрирован 25.01.2023 № 22426-330-007-02-03/138)
Номер опубликования: 5201202301270008
Дата опубликования: 27.01.2023
Страница №5 из 5:
Увеличить