Официальное опубликование правовых актов
ОФИЦИАЛЬНОЕ ОПУБЛИКОВАНИЕ
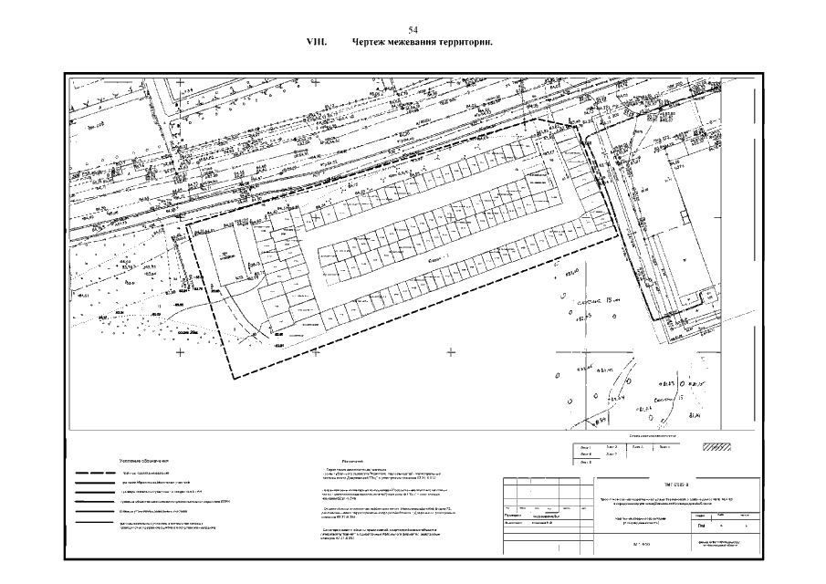
Приказ Министерства градостроительной деятельности и развития агломераций Нижегородской области от 06.12.2022 № 07-02-03/122 "Об утверждении проекта межевания территории по улице Терешковой, в районе домов №№ 46А-62 в городском округе город Дзержинск Нижегородской области"
(Зарегистрирован 26.12.2022 № 22224-330-007-02-03/122)
Номер опубликования: 5201202212300004
Дата опубликования: 30.12.2022
Страница №56 из 59:
Увеличить