Официальное опубликование правовых актов
ОФИЦИАЛЬНОЕ ОПУБЛИКОВАНИЕ
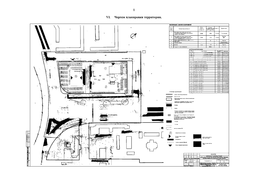
Приказ Министерства градостроительной деятельности и развития агломераций Нижегородской области от 24.10.2022 № 07-02-03/106
"Об утверждении документации по планировке территории (проекта планировки территории, включая проект межевания территории), расположенной в границах улиц Бетанкура, Сергея Акимова, Мещерского бульвара в Канавинском районе города Нижнего Новгорода"
(Зарегистрирован 07.11.2022 № 21282-330-007-02-03/106)
Номер опубликования: 5201202211090008
Дата опубликования: 09.11.2022
Страница №10 из 12:
Увеличить