Официальное опубликование правовых актов
ОФИЦИАЛЬНОЕ ОПУБЛИКОВАНИЕ
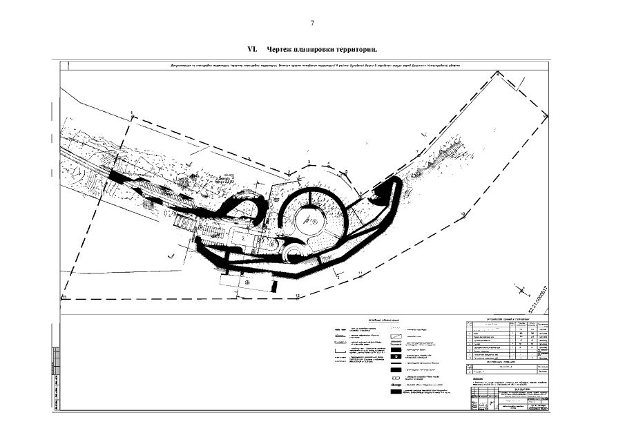
Приказ Министерства градостроительной деятельности и развития агломераций Нижегородской области от 17.10.2022 № 07-02-03/101
"Об утверждении документации по планировке территории (проекта планировки территории, включая проект межевания территории) в районе Шуховской башни в городском округе город Дзержинск Нижегородской области"
(Зарегистрирован 31.10.2022 № 21245-330-007-02-03/101)
Номер опубликования: 5201202211020009
Дата опубликования: 02.11.2022
Страница №9 из 10:
Увеличить