Официальное опубликование правовых актов
ОФИЦИАЛЬНОЕ ОПУБЛИКОВАНИЕ
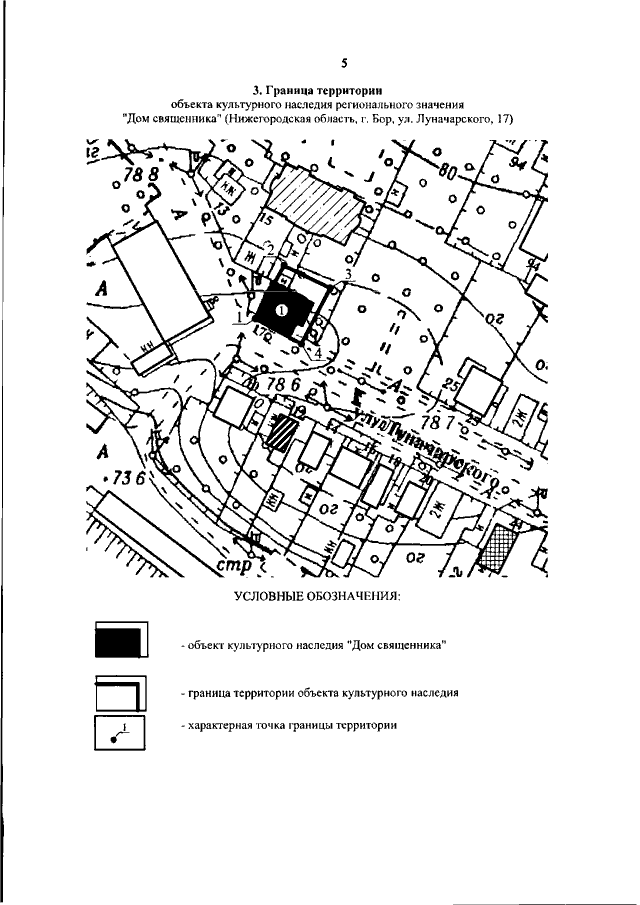
Приказ Управления государственной охраны объектов культурного наследия Нижегородской области от 20.07.2022 № 251
"Об утверждении границ и режима использования территорий объектов культурного наследия регионального значения, расположенных на улицах Ленина, Луначарского, Папанина в г. Бор Нижегородской области"
(Зарегистрирован 08.08.2022 № 20786-518-251)
Номер опубликования: 5201202208110006
Дата опубликования: 11.08.2022
Страница №7 из 12:
Увеличить