Официальное опубликование правовых актов
ОФИЦИАЛЬНОЕ ОПУБЛИКОВАНИЕ
Приказ Министерства градостроительной деятельности и развития агломераций Нижегородской области от 06.07.2022 № 07-02-03/62
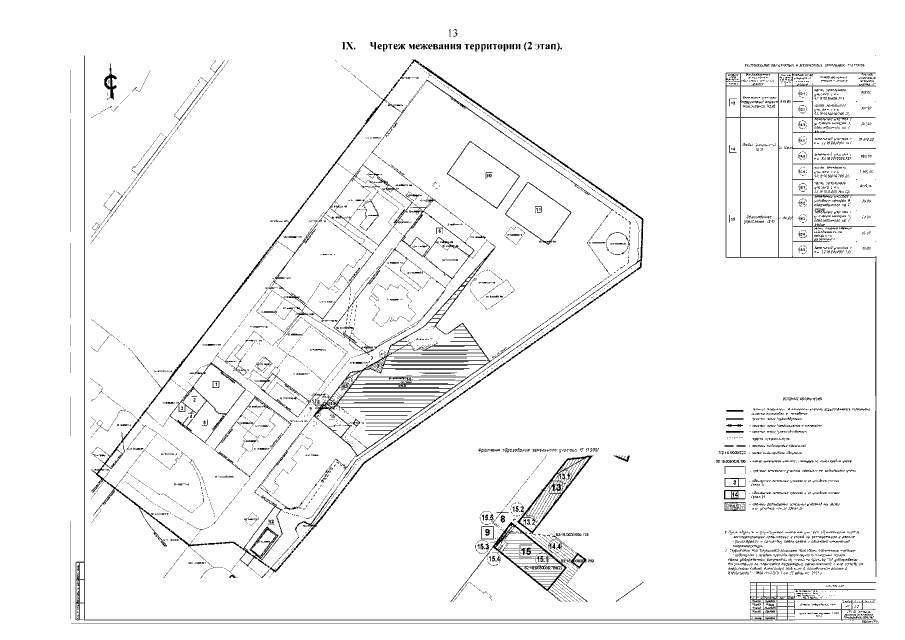
"Об утверждении документации по внесению изменений в документацию по планировке территории с детализацией застройки и парковой зоны в границах улиц Керченская, Совнаркомовская, набережная рек Волга и Ока, на период проведения чемпионата мира по футболу 2018 года"
(Зарегистрирован 26.07.2022 № 20719-330-007-02-03/62)
Номер опубликования: 5201202207280002
Дата опубликования: 28.07.2022
Страница №15 из 18:
Увеличить