Официальное опубликование правовых актов
ОФИЦИАЛЬНОЕ ОПУБЛИКОВАНИЕ
Приказ Министерства градостроительной деятельности и развития агломераций Нижегородской области от 17.06.2022 № 07-02-03/54
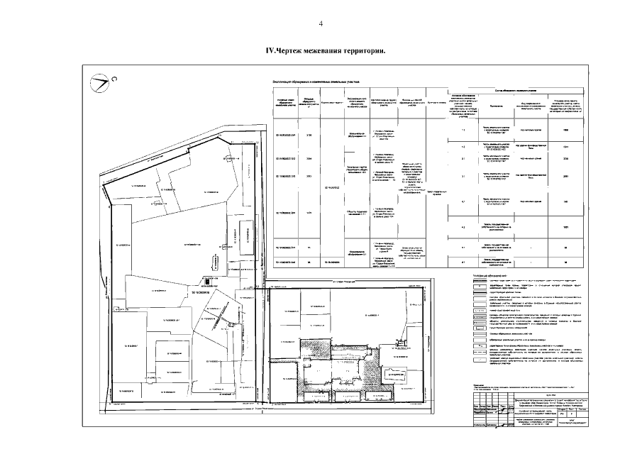
"Об утверждении документации по внесению изменений в проект межевания территории в границах улиц Коминтерна, 50 лет Победы, Просвещенская, Березовская в Московском районе города Нижнего Новгорода"
(Зарегистрирован 08.07.2022 № 20585-330-007-02-03/54)
Номер опубликования: 5201202207110001
Дата опубликования: 11.07.2022
Страница №6 из 7:
Увеличить