Официальное опубликование правовых актов
ОФИЦИАЛЬНОЕ ОПУБЛИКОВАНИЕ
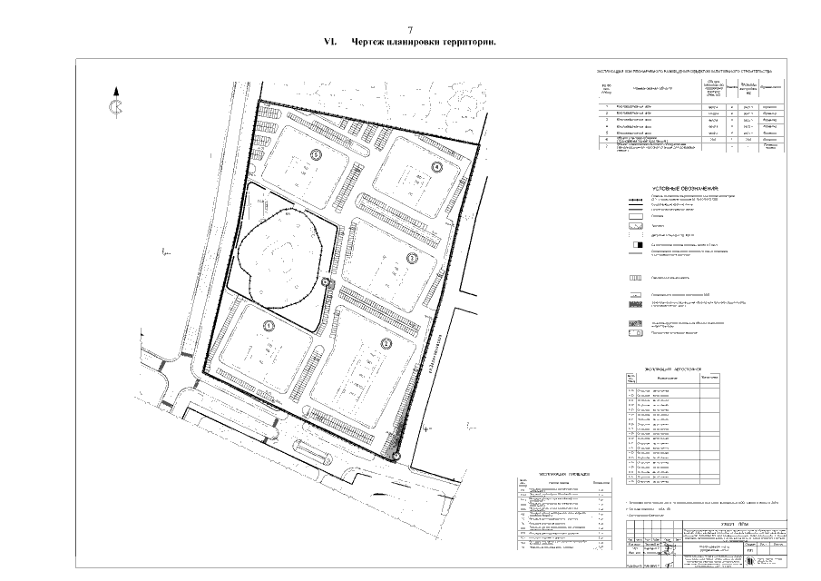
Приказ Министерства градостроительной деятельности и развития агломераций Нижегородской области от 11.04.2022 № 07-02-03/30 "Об утверждении документации по планировке территории (проекта планировки территории, включая проект межевания территории) в границах земельного участка с кадастровым номером 52:18:0040343:725, расположенного по адресу: Нижегородская обл., г. Нижний Новгород, Автозаводский район, в 20 метрах на запад от жилых домов с №1 по №19 по ул.Зеленхозовская"
(Зарегистрирован 12.05.2022 № 20111-330-007-02-03/30)
Номер опубликования: 5201202205130003
Дата опубликования: 13.05.2022
Страница №9 из 10:
Увеличить