Приказ Министерства градостроительной деятельности и развития агломераций Нижегородской области от 08.02.2022 № 07-02-03/8
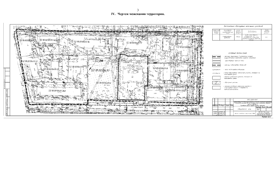
"Об утверждении документации по внесению изменений в проект межевания территории в границах проспекта 70 лет Октября, улиц Стрелковая, Баренца, Василия Иванова в Сормовском районе города Нижнего Новгорода"
(Зарегистрирован 03.03.2022 № 19409-330-007-02-03/8)
"Об утверждении документации по внесению изменений в проект межевания территории в границах проспекта 70 лет Октября, улиц Стрелковая, Баренца, Василия Иванова в Сормовском районе города Нижнего Новгорода"
(Зарегистрирован 03.03.2022 № 19409-330-007-02-03/8)
Номер опубликования: 5201202203050003
Дата опубликования:
05.03.2022
