Приказ Министерства градостроительной деятельности и развития агломераций Нижегородской области от 21.12.2021 № 07-02-03/112
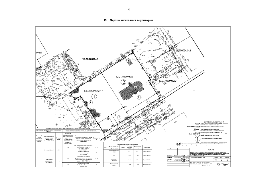
"Об утверждении документации по внесению изменений в проект межевания территории, ограниченной ул. Матросова, ул. Студенческая, пр. Дзержинского, пл. Свободы, ул. Чапаева, ул. Пирогова в городе Дзержинске Нижегородской области"
(Зарегистрирован 20.01.2022 № 19104-330-007-02-03/112)
"Об утверждении документации по внесению изменений в проект межевания территории, ограниченной ул. Матросова, ул. Студенческая, пр. Дзержинского, пл. Свободы, ул. Чапаева, ул. Пирогова в городе Дзержинске Нижегородской области"
(Зарегистрирован 20.01.2022 № 19104-330-007-02-03/112)
Номер опубликования: 5201202201210009
Дата опубликования:
21.01.2022
