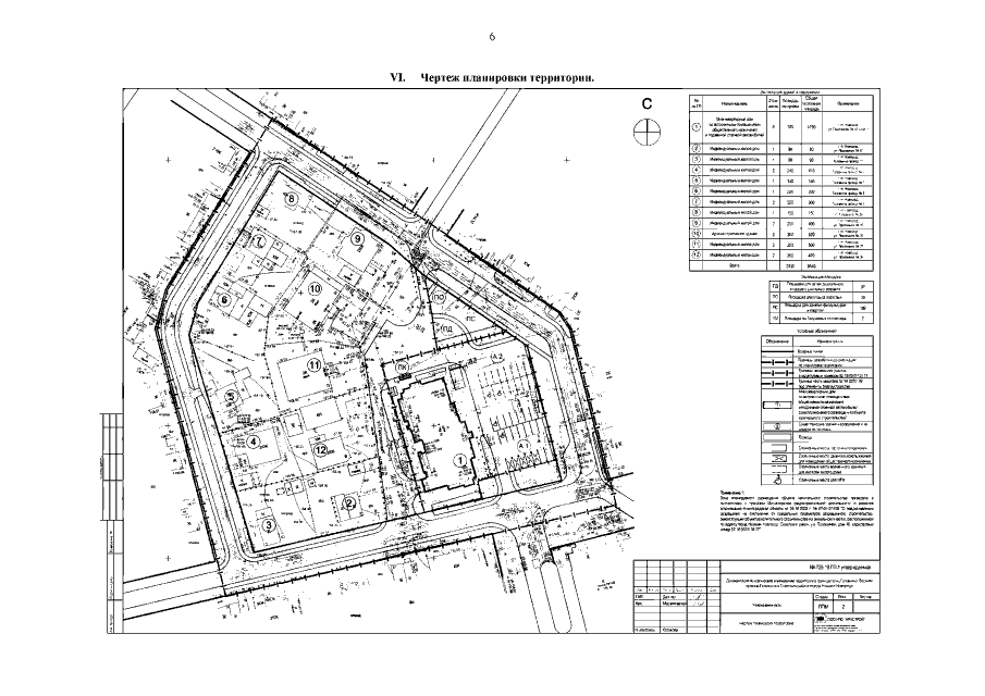
Приказ Министерства градостроительной деятельности и развития агломераций Нижегородской области от 19.05.2021 № 07-02-03/28 "Об утверждении проекта планировки и межевания территории в границах улиц Головнина, Верхняя, проезда Головнина в Советском районе города Нижнего Новгорода"
(Зарегистрирован 11.06.2021 № 17347-330-007-02-03/28)
(Зарегистрирован 11.06.2021 № 17347-330-007-02-03/28)
Номер опубликования: 5201202106160002
Дата опубликования:
16.06.2021
