Официальное опубликование правовых актов
ОФИЦИАЛЬНОЕ ОПУБЛИКОВАНИЕ
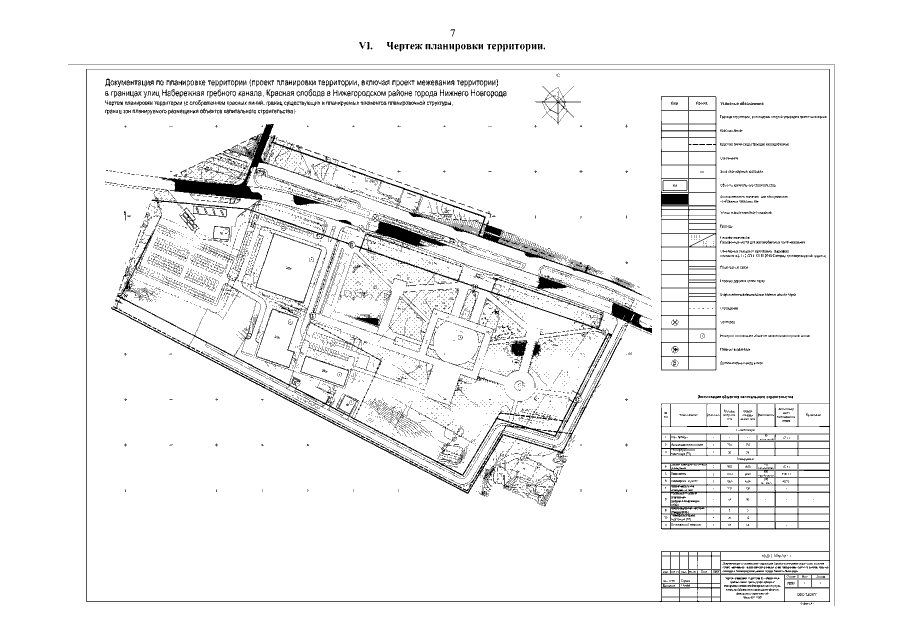
Приказ Министерства градостроительной деятельности и развития агломераций Нижегородской области от 04.03.2021 № 07-02-03/10 "Об утверждении документации по планировке территории (проекта планировки территории, включая проект межевания территории) в границах улиц набережная Гребного канала, Красная слобода в Нижегородском районе города Нижнего Новгорода"
(Зарегистрирован 30.03.2021 № 16968-330-007-02-03/10)
Номер опубликования: 5201202103310002
Дата опубликования: 31.03.2021
Страница №9 из 11:
Увеличить