Приказ Министерства градостроительной деятельности и развития агломераций Нижегородской области от 05.11.2020 № 07-02-03/116
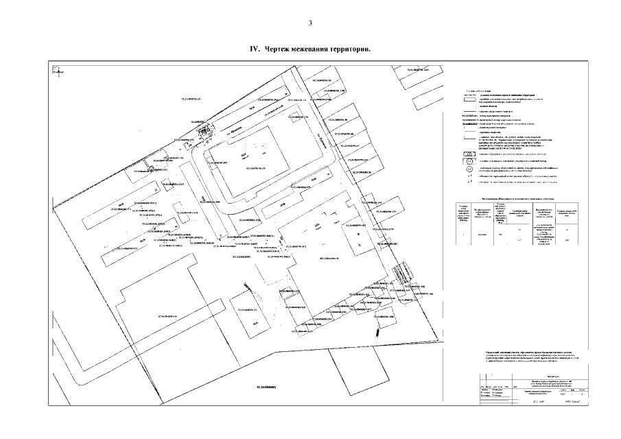
"Об утверждении проекта межевания территории в районе уч. 20В в пос. Кудьма города Нижнего Новгорода"
(Зарегистрирован 30.11.2020 № 16153-330-007-02-03/116)
"Об утверждении проекта межевания территории в районе уч. 20В в пос. Кудьма города Нижнего Новгорода"
(Зарегистрирован 30.11.2020 № 16153-330-007-02-03/116)
Номер опубликования: 5201202012020008
Дата опубликования:
02.12.2020
