Официальное опубликование правовых актов
ОФИЦИАЛЬНОЕ ОПУБЛИКОВАНИЕ
Приказ Министерства градостроительной деятельности и развития агломераций Нижегородской области от 30.10.2020 № 07-02-03/114
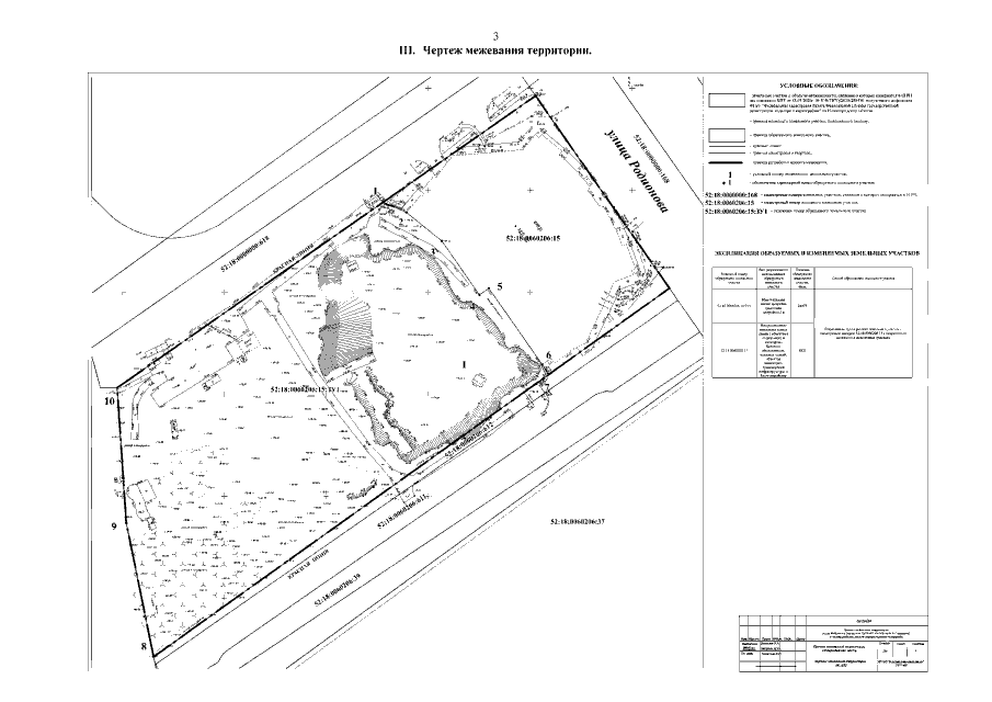
"Об утверждении проекта межевания территории по ул. Родионова (напротив ГБУЗ НО "НОКБ им. Н.А. Семашко") в Нижегородском районе города Нижнего Новгорода"
(Зарегистрирован 30.11.2020 № 16152-330-007-02-03/114)
Номер опубликования: 5201202012020004
Дата опубликования: 02.12.2020
Страница №5 из 5:
Увеличить