Официальное опубликование правовых актов
ОФИЦИАЛЬНОЕ ОПУБЛИКОВАНИЕ
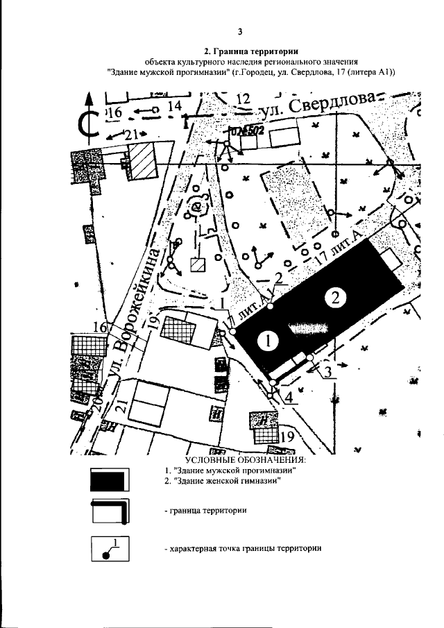
Приказ Управления государственной охраны объектов культурного наследия Нижегородской области от 05.11.2020 № 347
"Об утверждении границ и режима использования территорий объектов культурного наследия регионального значения в г. Городце"
(Зарегистрирован 26.11.2020 № 16145-518-347)
Номер опубликования: 5201202011270001
Дата опубликования: 27.11.2020
Страница №5 из 8:
Увеличить