Приказ Министерства градостроительной деятельности и развития агломераций Нижегородской области от 29.09.2020 № 07-02-03/102
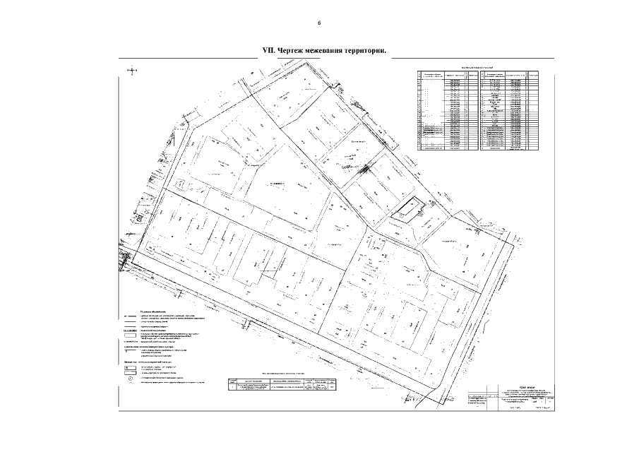
"Об утверждении документации по планировке территории (проекта планировки территории, включая проект межевания территории), расположенной в границах улиц Гаугеля, Героев Космоса в Сормовском районе города Нижнего Новгорода"
(Зарегистрирован 14.10.2020 № 15651-330-007-02-03/102)
"Об утверждении документации по планировке территории (проекта планировки территории, включая проект межевания территории), расположенной в границах улиц Гаугеля, Героев Космоса в Сормовском районе города Нижнего Новгорода"
(Зарегистрирован 14.10.2020 № 15651-330-007-02-03/102)
Номер опубликования: 5201202010160006
Дата опубликования:
16.10.2020
