Приказ Министерства градостроительной деятельности и развития агломераций Нижегородской области от 16.09.2020 № 07-02-03/98
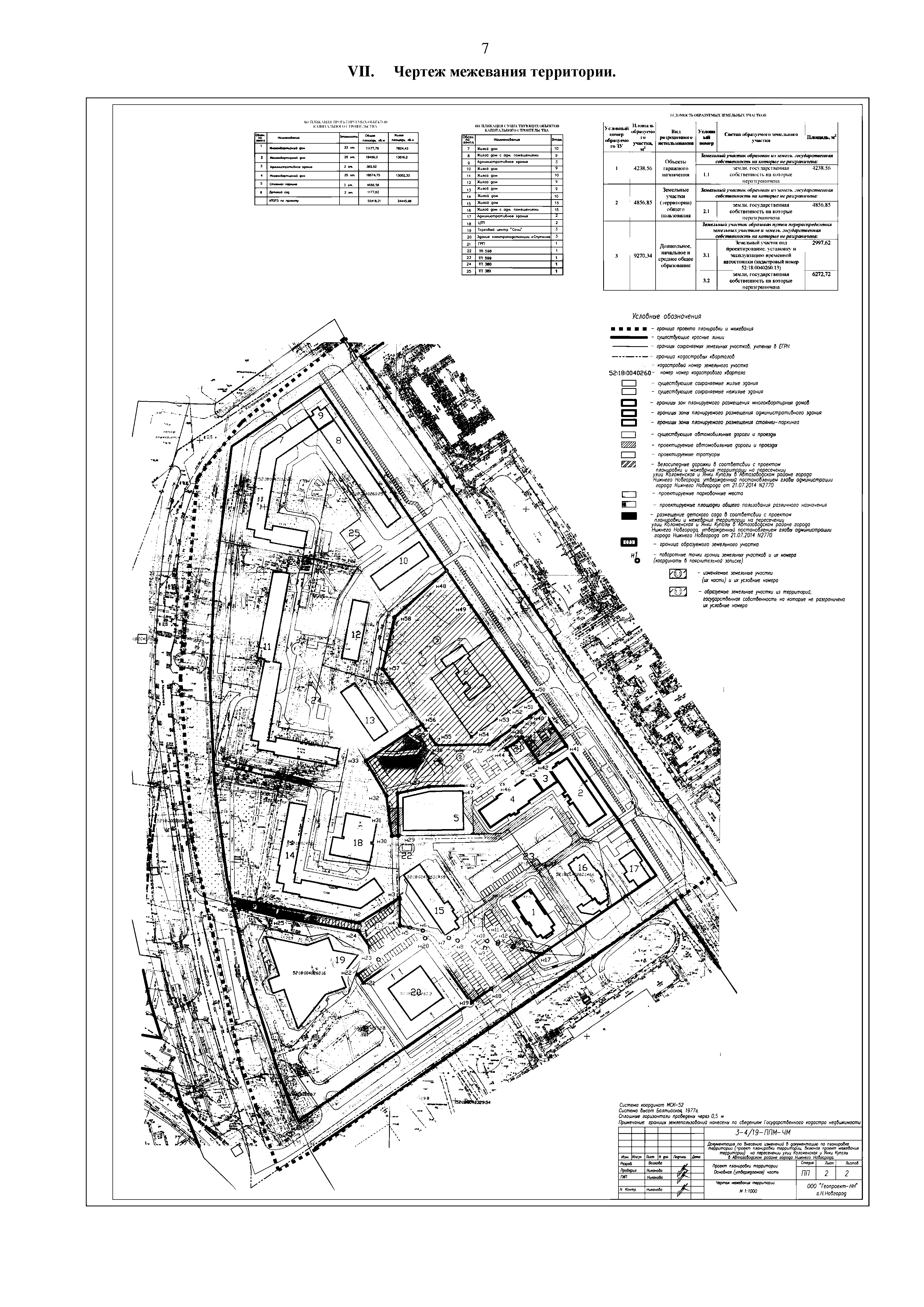
"Об утверждении документации по внесению изменений в проект планировки и межевания территории на пересечении улиц Коломенская и Янки Купалы в Автозаводском районе города Нижнего Новгорода"
(Зарегистрирован 07.10.2020 № 15591-330-007-02-03/98)
"Об утверждении документации по внесению изменений в проект планировки и межевания территории на пересечении улиц Коломенская и Янки Купалы в Автозаводском районе города Нижнего Новгорода"
(Зарегистрирован 07.10.2020 № 15591-330-007-02-03/98)
Номер опубликования: 5201202010090005
Дата опубликования:
09.10.2020
