Официальное опубликование правовых актов
ОФИЦИАЛЬНОЕ ОПУБЛИКОВАНИЕ
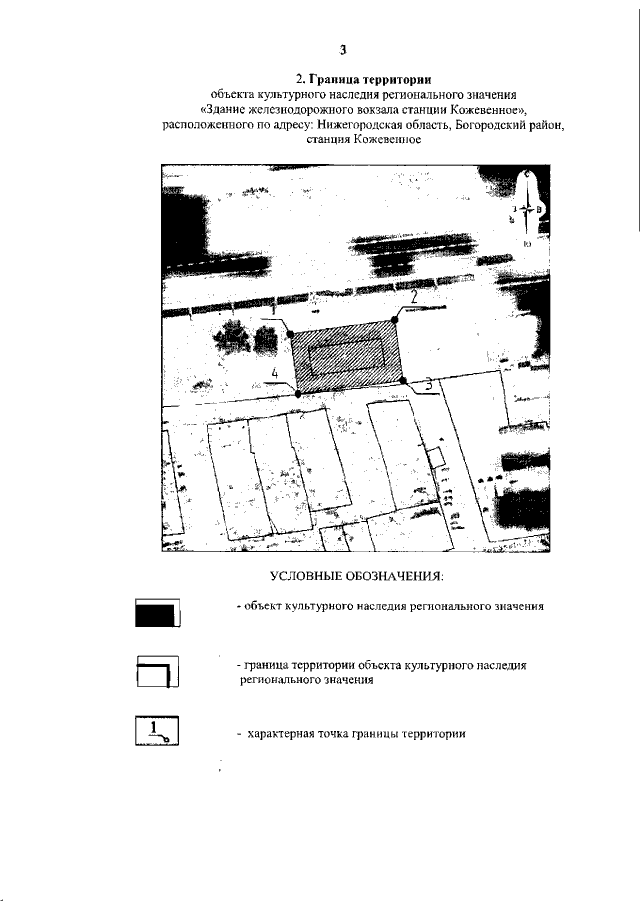
Приказ Управления государственной охраны объектов культурного наследия Нижегородской области от 06.05.2020 № 162
"О включении выявленных объектов культурного наследия, расположенных в г. Нижнем Новгороде и Нижегородской области, в единый государственный реестр объектов культурного наследия (памятников истории и культуры) народов Российской Федерации в качестве объектов культурного наследия регионального значения, утверждении границ и режима использования их территорий"
(Зарегистрирован 26.05.2020 № 15160-518-162)
Номер опубликования: 5201202005290001
Дата опубликования: 29.05.2020
Страница №6 из 11:
Увеличить