Официальное опубликование правовых актов
ОФИЦИАЛЬНОЕ ОПУБЛИКОВАНИЕ
Постановление Правительства Нижегородской области от 20.01.2020 № 46
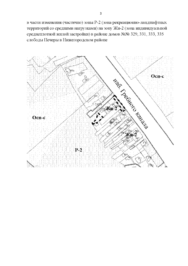
"Об утверждении изменений в генеральный план города Нижнего Новгорода, утвержденный постановлением городской Думы города Нижнего Новгорода от 17 марта 2010 г. № 22"
Номер опубликования: 5200202001220002
Дата опубликования: 22.01.2020
Страница №9 из 23:
Увеличить