Официальное опубликование правовых актов
ОФИЦИАЛЬНОЕ ОПУБЛИКОВАНИЕ
Распоряжение Министерства культуры Мурманской области от 16.05.2025 № 44
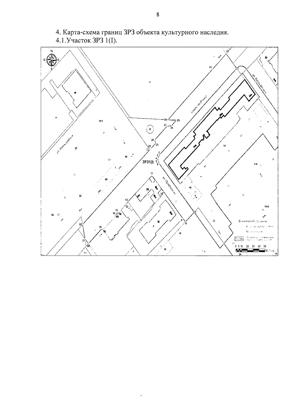
"Об установлении зон охраны (охранной зоны, зон регулирования застройки и хозяйственной деятельности) объекта культурного наследия регионального значения "Административное здание города Мурманска и Мурманской области", 1949 г., местонахождение (адрес): Мурманская область, город Мурманск, проспект Ленина, дом 75, а также ограничений использования земель и земельных участков, требований к градостроительным регламентам в границах данных зон"
(Зарегистрирован 16.05.2025 № 12-2025-20)
Номер опубликования: 5101202505190002
Дата опубликования: 19.05.2025
Страница №15 из 25:
Увеличить