Официальное опубликование правовых актов
ОФИЦИАЛЬНОЕ ОПУБЛИКОВАНИЕ
Распоряжение Комитета по культуре и искусству Мурманской области от 08.04.2019 № 57
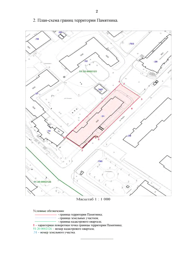
"Об утверждении границ территории и режима использования территории объекта культурного наследия регионального значения "Жилой дом", расположенного по адресу: Мурманская область, город Мурманск, проспект Ленина, дом 29"
Номер опубликования: 5101201904110004
Дата опубликования: 11.04.2019
Страница №3 из 5:
Увеличить