Официальное опубликование правовых актов
ОФИЦИАЛЬНОЕ ОПУБЛИКОВАНИЕ
Приказ управления строительства и архитектуры Липецкой области от 19.01.2024 № 14
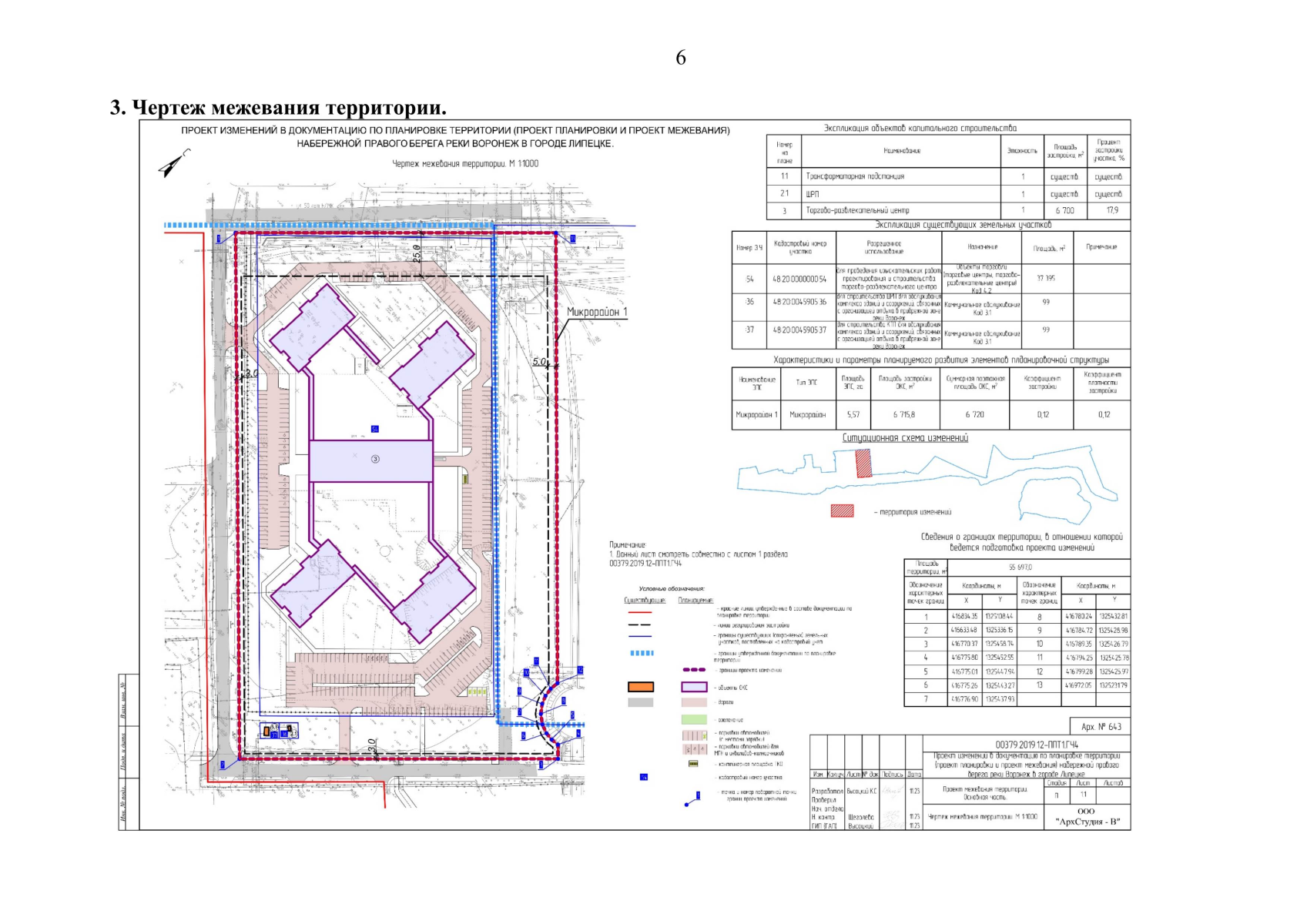
"Об утверждении проекта изменений в документацию по планировке территории (проект планировки и проект межевания) набережной правого берега реки Воронеж в городе Липецке"
Номер опубликования: 4801202401260008
Дата опубликования: 26.01.2024
Страница №8 из 8:
Увеличить