Официальное опубликование правовых актов
ОФИЦИАЛЬНОЕ ОПУБЛИКОВАНИЕ
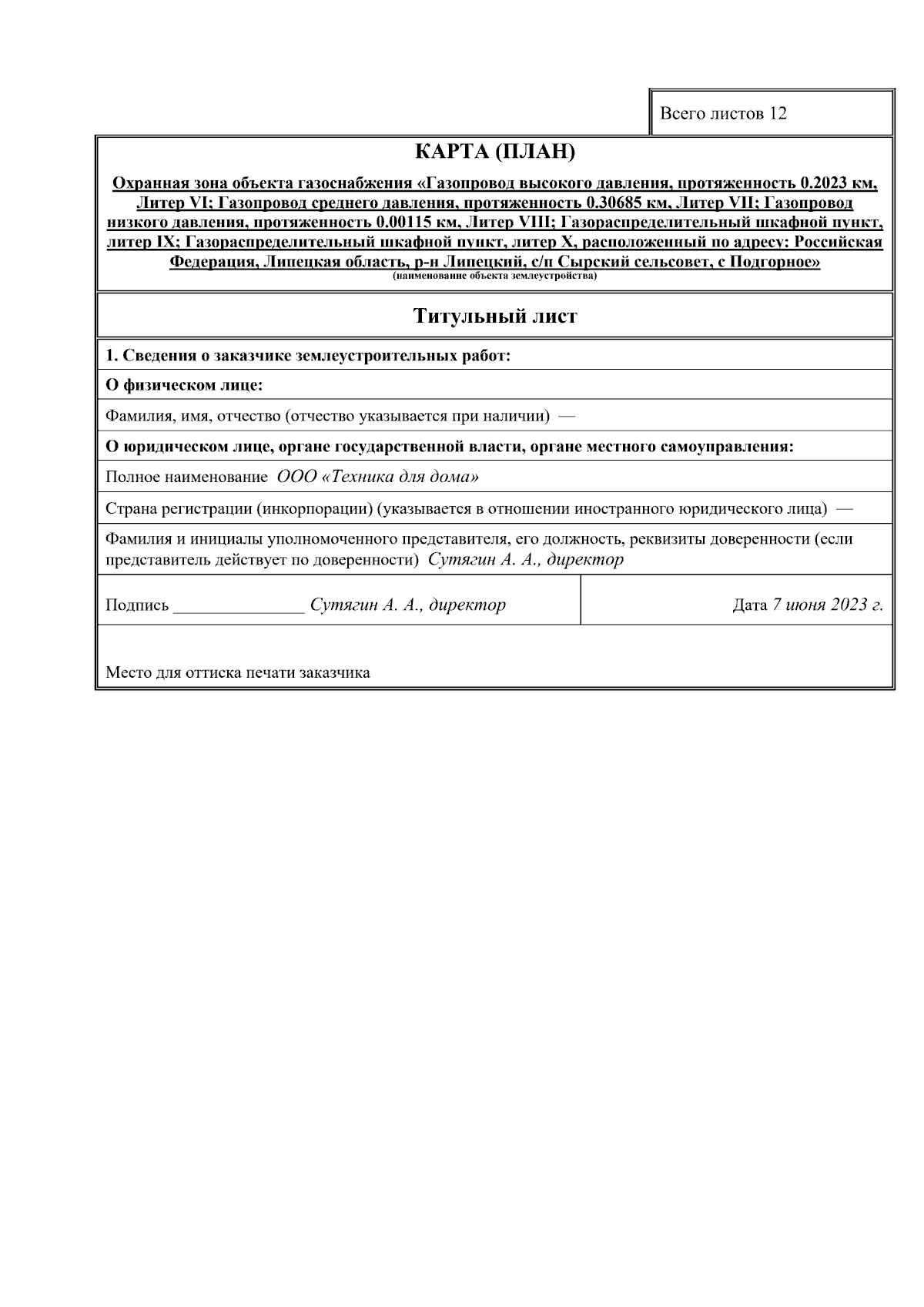
Постановление управления энергетики и тарифов Липецкой области от 08.09.2023 № 37/4
"Об утверждении границ охранных зон газораспределительных сетей"
Номер опубликования: 4801202309110001
Дата опубликования: 11.09.2023
Страница №2 из 13:
Увеличить