Официальное опубликование правовых актов
ОФИЦИАЛЬНОЕ ОПУБЛИКОВАНИЕ
Приказ управления строительства и архитектуры Липецкой области от 06.09.2023 № 239
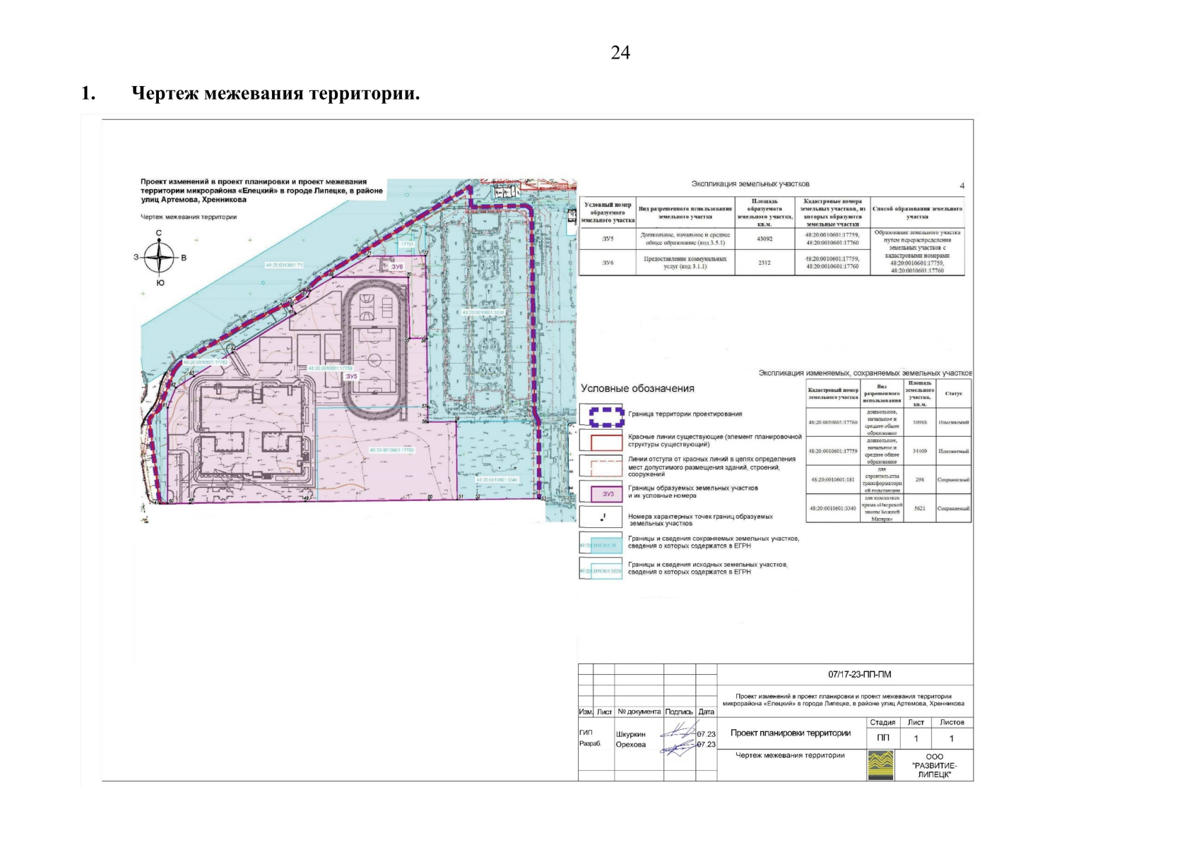
"Об утверждении проекта изменений в проект планировки и проект межевания территории микрорайона "Елецкий" в городе Липецке, в границах улиц Артемова, Хренникова, Елецкое шоссе"
Номер опубликования: 4801202309080002
Дата опубликования: 08.09.2023
Страница №26 из 26:
Увеличить