Официальное опубликование правовых актов
ОФИЦИАЛЬНОЕ ОПУБЛИКОВАНИЕ
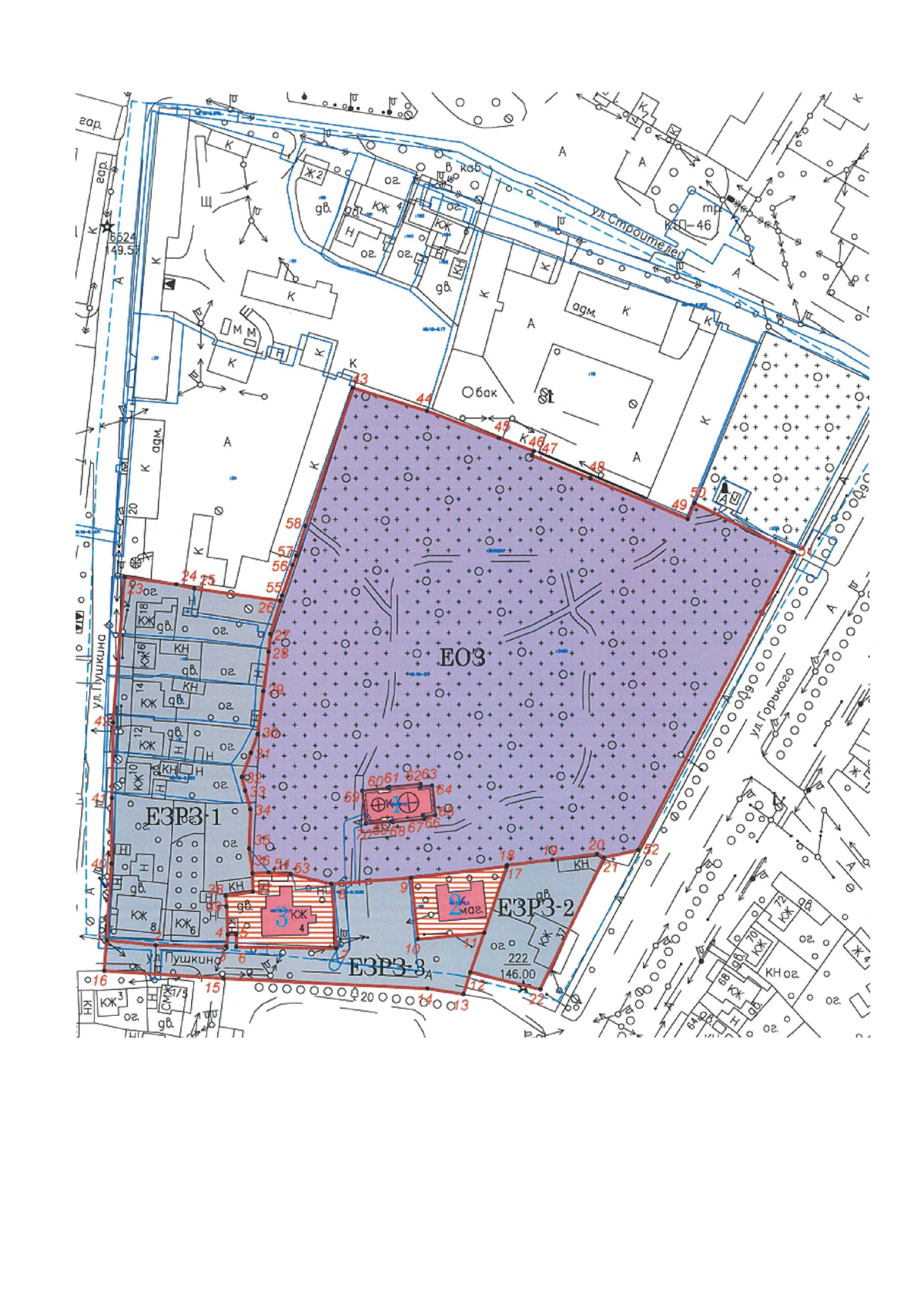
Постановление Правительства Липецкой области от 25.12.2024 № 707
"Об установлении границ объединенной зоны охраны объектов культурного наследия регионального значения: "Церковь Успения 1831 г.", расположенного по адресу: Липецкая область, г. Чаплыгин, кладбище, "Дом священника (кладбище)"‚ расположенного по адресу: Липецкая область, г. Чаплыгин, ул. Пушкина, 2, "Бывшее здание богодельни", расположенного по адресу: Липецкая область, г. Чаплыгин, ул. Пушкина, 4, и утверждении требований к градостроительным регламентам в границах территории данной зоны"
Номер опубликования: 4800202412260007
Дата опубликования: 26.12.2024
Страница №4 из 18:
Увеличить