Официальное опубликование правовых актов
ОФИЦИАЛЬНОЕ ОПУБЛИКОВАНИЕ
Постановление Правительства Липецкой области от 25.12.2024 № 708
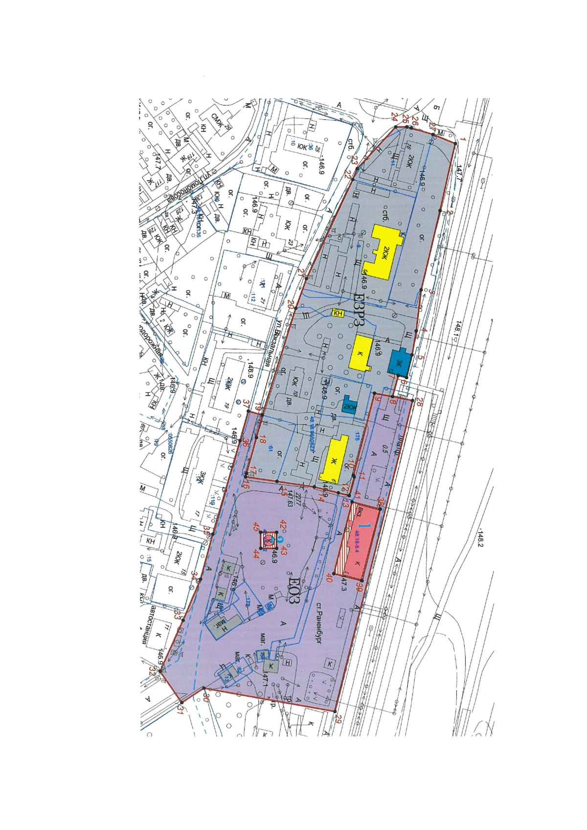
"Об установлении границ объединенной зоны охраны объектов культурного наследия регионального значения: "Здание ж. д. вокзала", 1890 г., расположенного по адресу: Липецкая область, Чаплыгинский район, город Чаплыгин, ул. Вокзальная, д. 1, и "Водонапорная башня", расположенного по адресу: Липецкая область, г. Чаплыгин, ул. Вокзальная, и утверждении требований к градостроительным регламентам в границах территории данной зоны"
Номер опубликования: 4800202412260006
Дата опубликования: 26.12.2024
Страница №4 из 14:
Увеличить