Официальное опубликование правовых актов
ОФИЦИАЛЬНОЕ ОПУБЛИКОВАНИЕ
Постановление Правительства Липецкой области от 19.12.2024 № 697
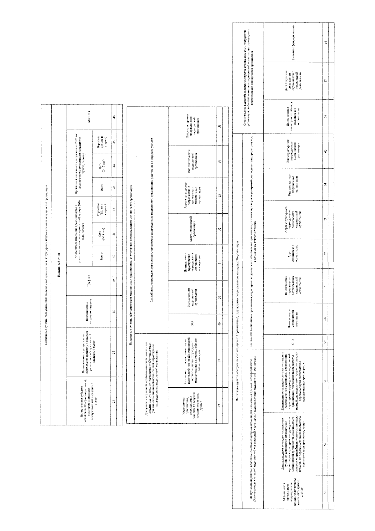
"О внесении изменения в постановление Правительства Липецкой области от 26 декабря 2023 года № 771 "Об утверждении государственной программы Липецкой области "Развитие здравоохранения Липецкой области"
Номер опубликования: 4800202412250002
Дата опубликования: 25.12.2024
Страница №466 из 722:
Увеличить