Официальное опубликование правовых актов
ОФИЦИАЛЬНОЕ ОПУБЛИКОВАНИЕ
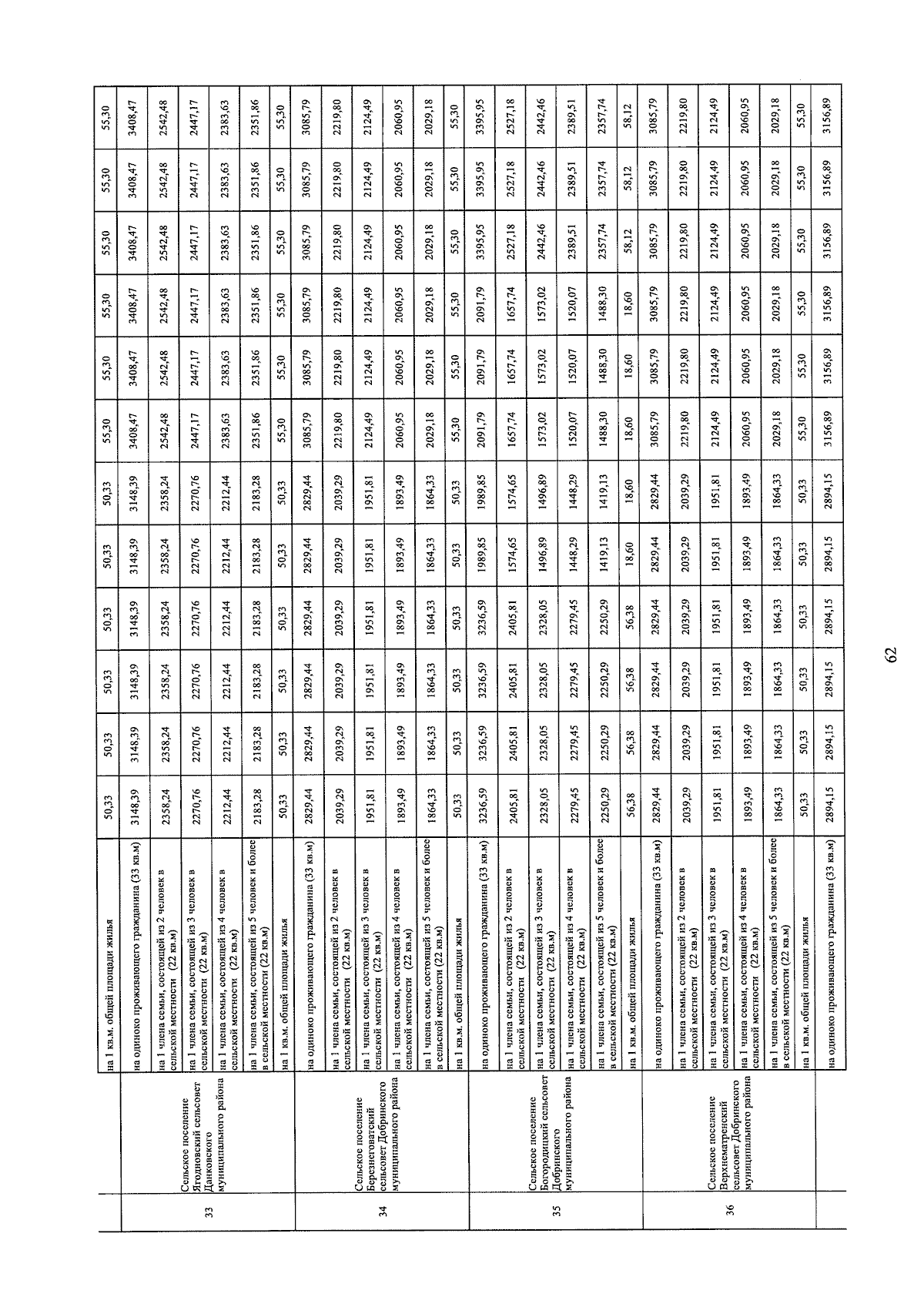
Постановление Липецкого областного Совета депутатов от 19.12.2024 № 1616-пс
"О внесении изменений в постановление Липецкого областного Совета депутатов "Об установлении размеров региональных стандартов стоимости жилищно-коммунальных услуг в Липецкой области на 2024 год"
Номер опубликования: 4800202412240019
Дата опубликования: 24.12.2024
Страница №64 из 166:
Увеличить