Официальное опубликование правовых актов
ОФИЦИАЛЬНОЕ ОПУБЛИКОВАНИЕ
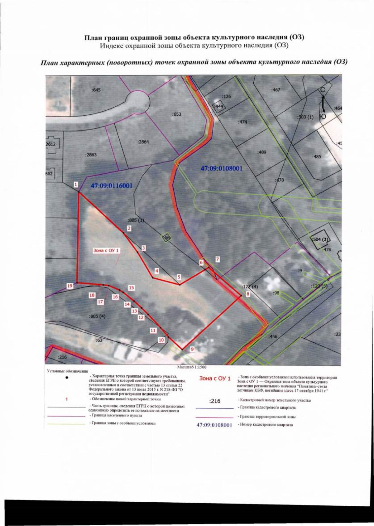
Приказ Комитета по сохранению культурного наследия Ленинградской области от 17.07.2024 № 01-03/24-61
"Об утверждении границ зон охраны объекта культурного наследия регионального значения "Памятник-стела летчикам КБФ, погибшим здесь 17 октября 1941 г.", по адресу: Ленинградская область, Всеволожский район, д. Канисты, к югу от г. Всеволожска, в 4 км от д. Колтуши, на окраине деревни, режимов использования земель и требований к градостроительным регламентам в границах данных зон"
(Зарегистрирован 17.07.2024 № КСКН-2024/01-61)
Номер опубликования: 4701202407230004
Дата опубликования: 23.07.2024
Страница №4 из 12:
Увеличить