Официальное опубликование правовых актов
ОФИЦИАЛЬНОЕ ОПУБЛИКОВАНИЕ
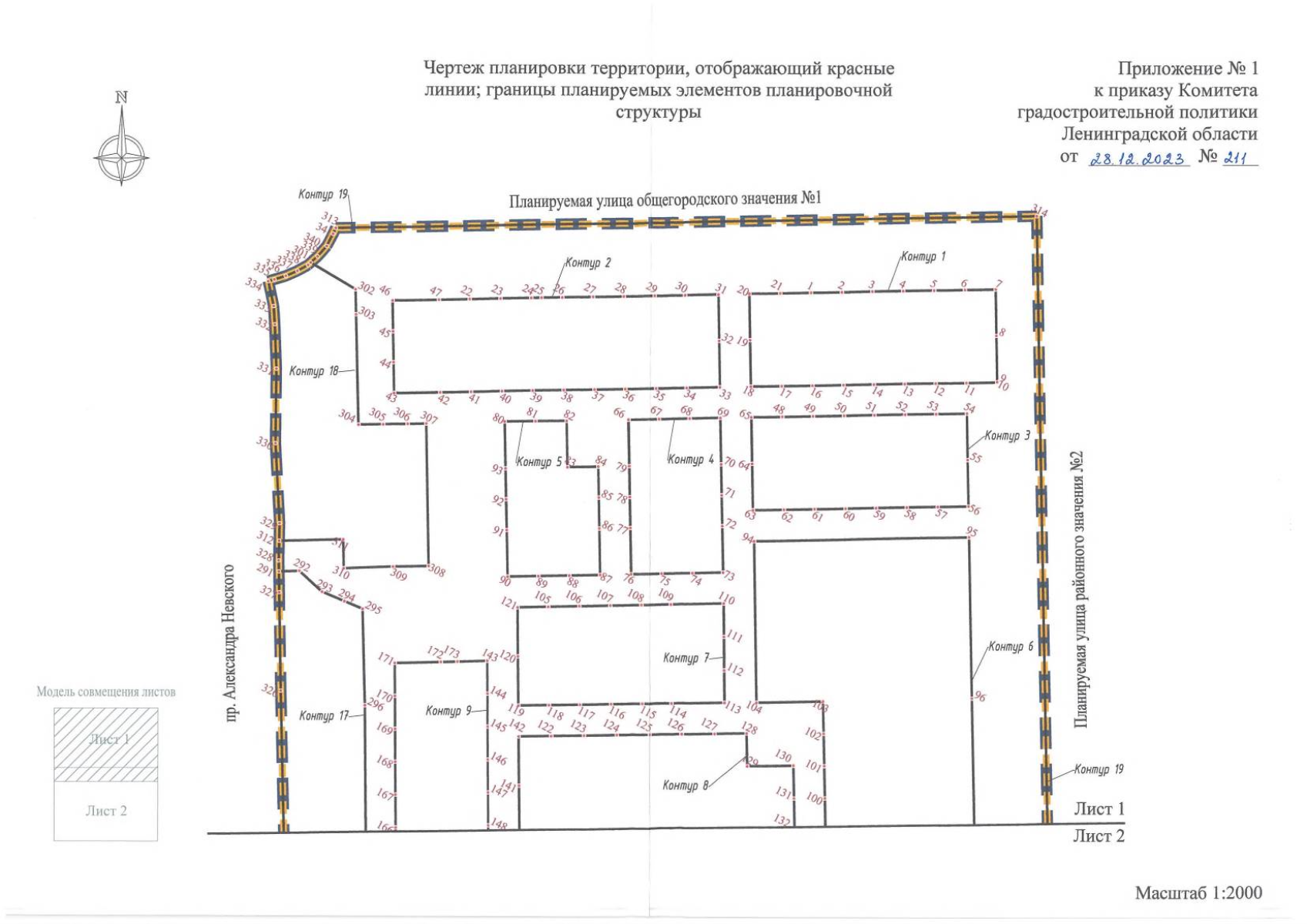
Приказ Комитета градостроительной политики Ленинградской области от 28.12.2023 № 211
"Об утверждении проекта планировки территории и проекта межевания территории микрорайона Искра-1 Сосновоборского городского округа Ленинградской области"
(Зарегистрирован 28.12.2023 № 01-06/211)
Номер опубликования: 4701202312310013
Дата опубликования: 31.12.2023
Страница №3 из 141:
Увеличить