Приказ Инспекции по охране объектов культурного наследия Костромской области от 04.08.2025 № 60-НПА
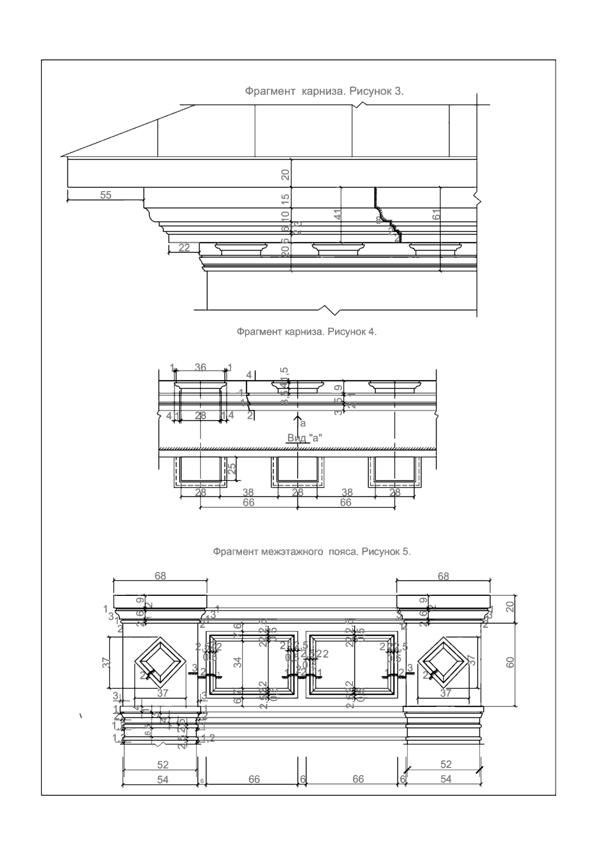
"Об утверждении предмета охраны объекта культурного наследия регионального значения "Здание ассигнационного банка", 1880-е гг. (Костромская область, г. Нерехта, ул. Красноармейская, д. 15)"
(Зарегистрирован 05.08.2025 № 327)
"Об утверждении предмета охраны объекта культурного наследия регионального значения "Здание ассигнационного банка", 1880-е гг. (Костромская область, г. Нерехта, ул. Красноармейская, д. 15)"
(Зарегистрирован 05.08.2025 № 327)
Номер опубликования: 4401202508050001
Дата опубликования:
05.08.2025
