Официальное опубликование правовых актов
ОФИЦИАЛЬНОЕ ОПУБЛИКОВАНИЕ
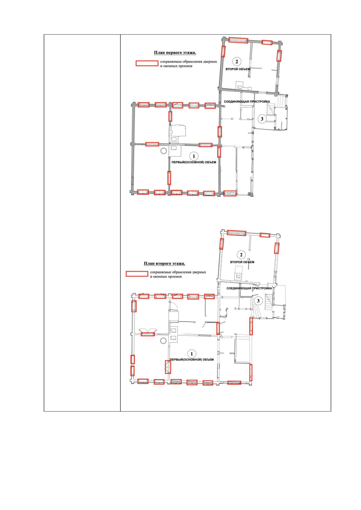
Приказ Инспекции по охране объектов культурного наследия Костромской области от 04.04.2025 № 31-НПА
"Об утверждении предмета охраны объекта культурного наследия регионального значения "Дом жилой", XIX в. (Костромская область, г. Галич, ул. Подбельского, 8)"
(Зарегистрирован 11.04.2025 № 178)
Номер опубликования: 4401202504140003
Дата опубликования: 14.04.2025
Страница №18 из 25:
Увеличить