Приказ Инспекции по охране объектов культурного наследия Костромской области от 10.03.2025 № 20-НПА
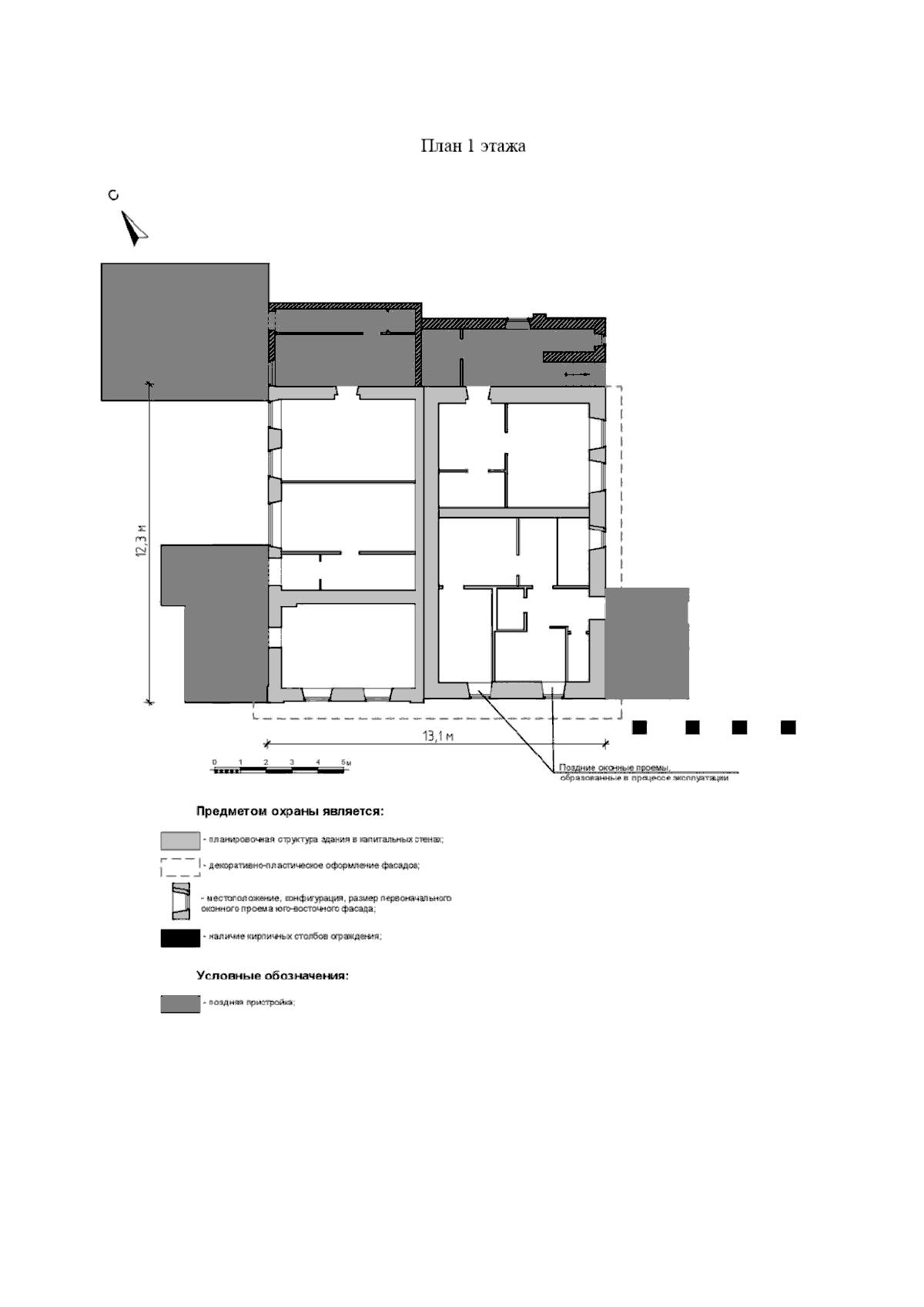
"Об утверждении предмета охраны объекта культурного наследия регионального значения "Усадьба Пермяковых, XIX-XX вв.: Баня", ок. 1912 г. (Костромская область, г. Кострома, ул. Кооперации, 11Б)"
(Зарегистрирован 13.03.2025 № 125)
"Об утверждении предмета охраны объекта культурного наследия регионального значения "Усадьба Пермяковых, XIX-XX вв.: Баня", ок. 1912 г. (Костромская область, г. Кострома, ул. Кооперации, 11Б)"
(Зарегистрирован 13.03.2025 № 125)
Номер опубликования: 4401202503130001
Дата опубликования:
13.03.2025
