Официальное опубликование правовых актов
ОФИЦИАЛЬНОЕ ОПУБЛИКОВАНИЕ
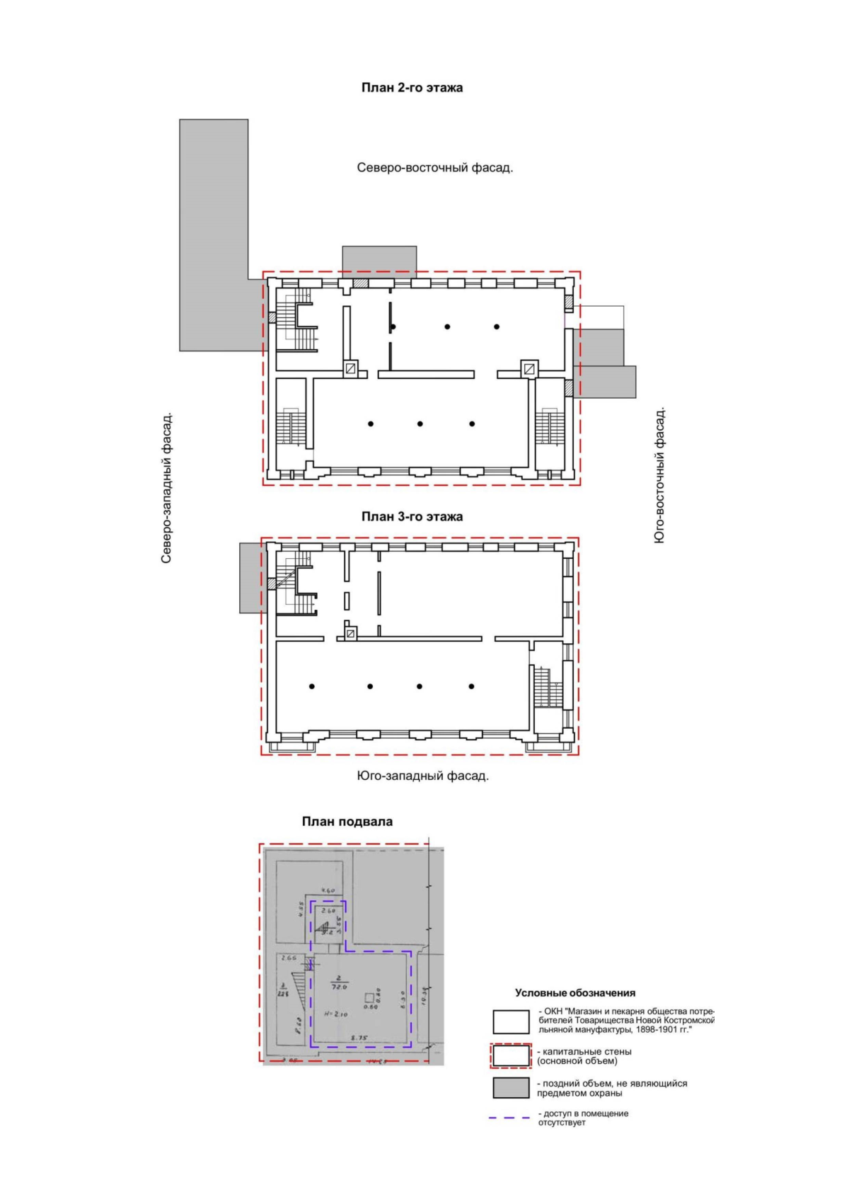
Приказ Инспекции по охране объектов культурного наследия Костромской области от 27.02.2025 № 19-НПА
"Об утверждении предмета охраны объекта культурного наследия регионального значения "Магазин и пекарня общества потребителей Товарищества Новой Костромской льняной мануфактуры", 1898 - 1901 гг. (Костромская область, г. Кострома, пр. Текстильщиков, 98)"
(Зарегистрирован 28.02.2025 № 105)
Номер опубликования: 4401202503030002
Дата опубликования: 03.03.2025
Страница №9 из 16:
Увеличить