Официальное опубликование правовых актов
ОФИЦИАЛЬНОЕ ОПУБЛИКОВАНИЕ
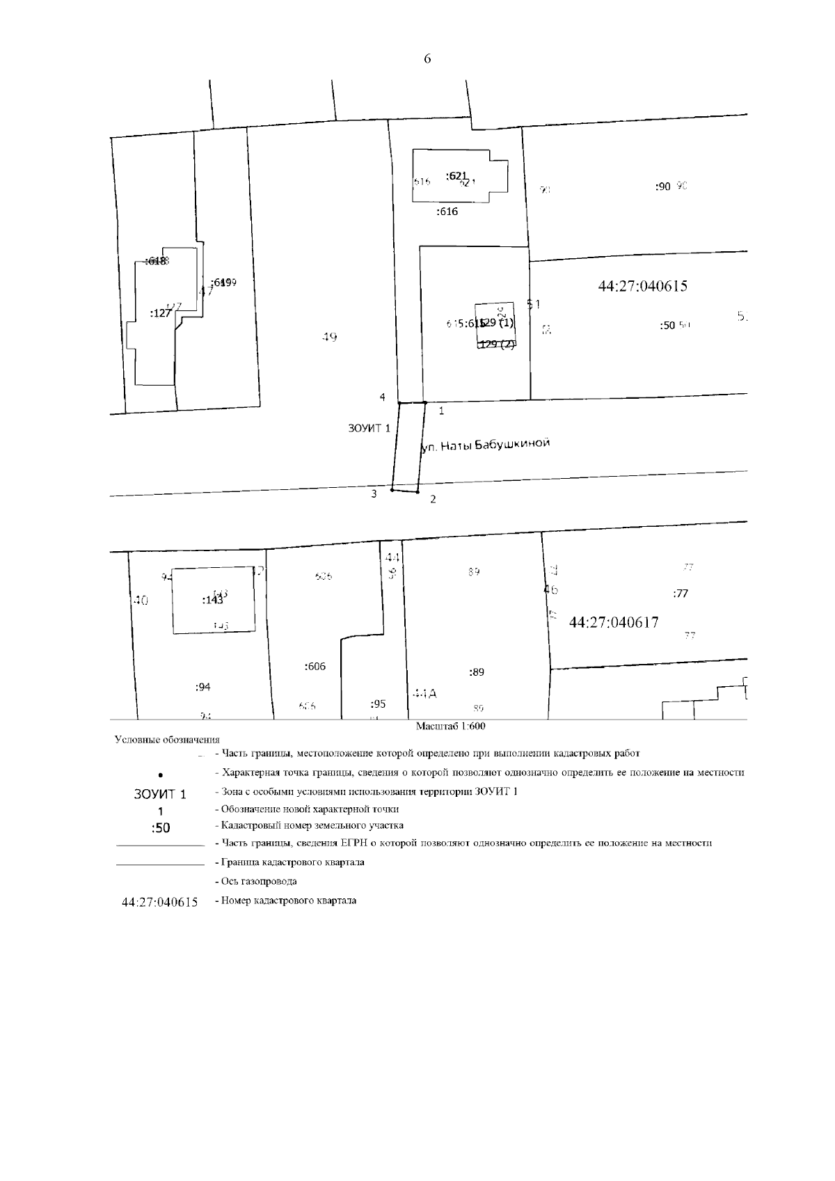
Приказ Департамента имущественных и земельных отношений Костромской области от 07.10.2024 № 130-од
"Об установлении охранных зон газопроводов газораспределительных сетей"
(Зарегистрирован 09.10.2024 № 515)
Номер опубликования: 4401202410100002
Дата опубликования: 10.10.2024
Страница №8 из 61:
Увеличить